Пространство света
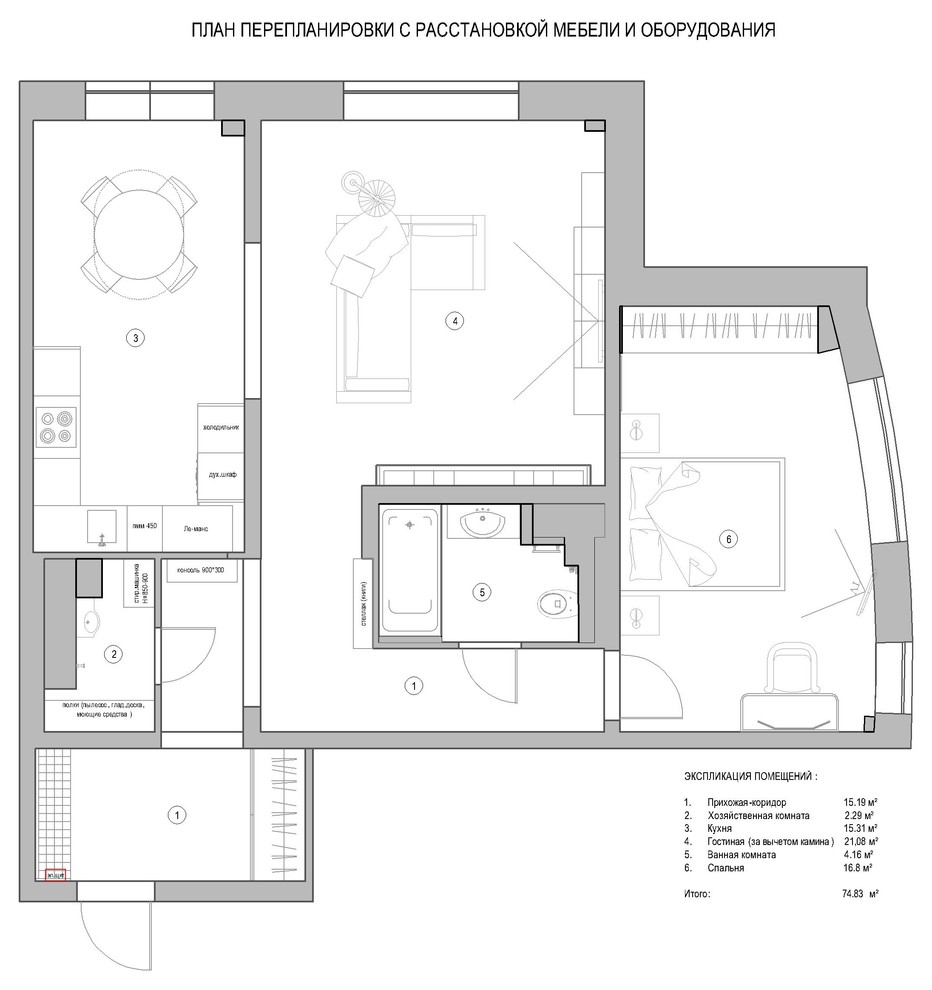
Оттенки серого, подчеркнутая легкость и отражение света легли в основу интерьера. . . Задача: подчеркнуть особенность планировки, воздушность пространства и необходимость, чтобы у каждой вещи было свое место хранения. Такой вот современный минимализм, чуть сглаженный и быть может чуточку одомашненный. . . Квартира: 80 кв.метров.
Год реализации: 2015
20 фотографий





















