Пространство для двоих. Квартира в Башнях Токио
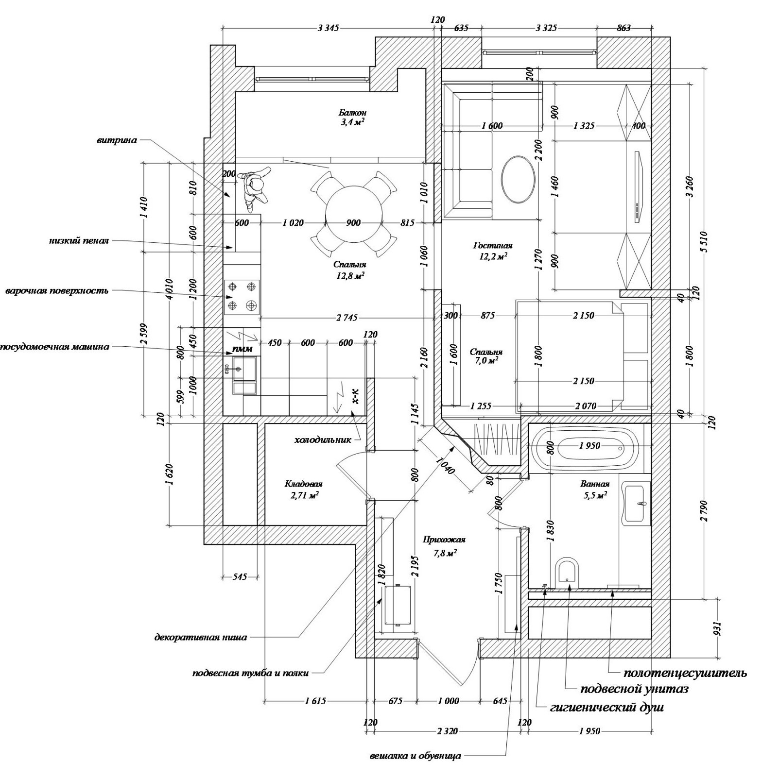
Эта квартира в Москве (ЖК «Башни Токио») была куплена парой только для себя. Задача состояла в создании комфортной среды для тех, кому нечего скрывать друг от друга. . «Саша, это место только для нас, для отдыха от работы, мы хотим современно, но уютно, чтобы было место для жизни, в которое хочется возвращаться каждый день» . Вспоминая эти слова, я постаралась исполнить их желание — максимально обьединила пространство, сохранила в нем «воздух», не забивая лишней мебелью, но, в то же время, предусмотрела всё необходимое - просторную прихожую, гардеробную-кладовую, ванную комнату, спальню, гостиную и кухню.
Год реализации: 2018
г. Москва, 15 1-й Красногвардейский проезд, Центральный административный округ
16 фотографий
















