Просторная квартира на 50 лет пионерии.
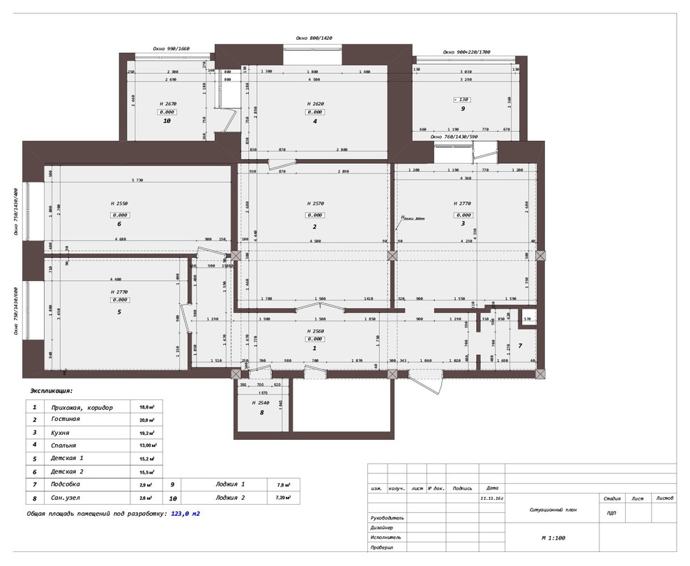
Этот проект четерехкомнатной квартиры начался с перепланировки, потому как функциональности традиционному варианту явно не доставало. Мы убрали нерациональный коридор, обзавелись отдельной гардеробной и пастирочной, которая в свою очередь стала местом обитания большого домашнего пса. Получился стильный своременный интерьер, не ограничивающий молодых хозяев в средствах самовыражения.
Год реализации: 2016
Стоимость проектирования: 135 000 ₽
г. Ижевск, улица 50 лет Пионерии
21 фотография






















