Проект "Жуковский" 221м2
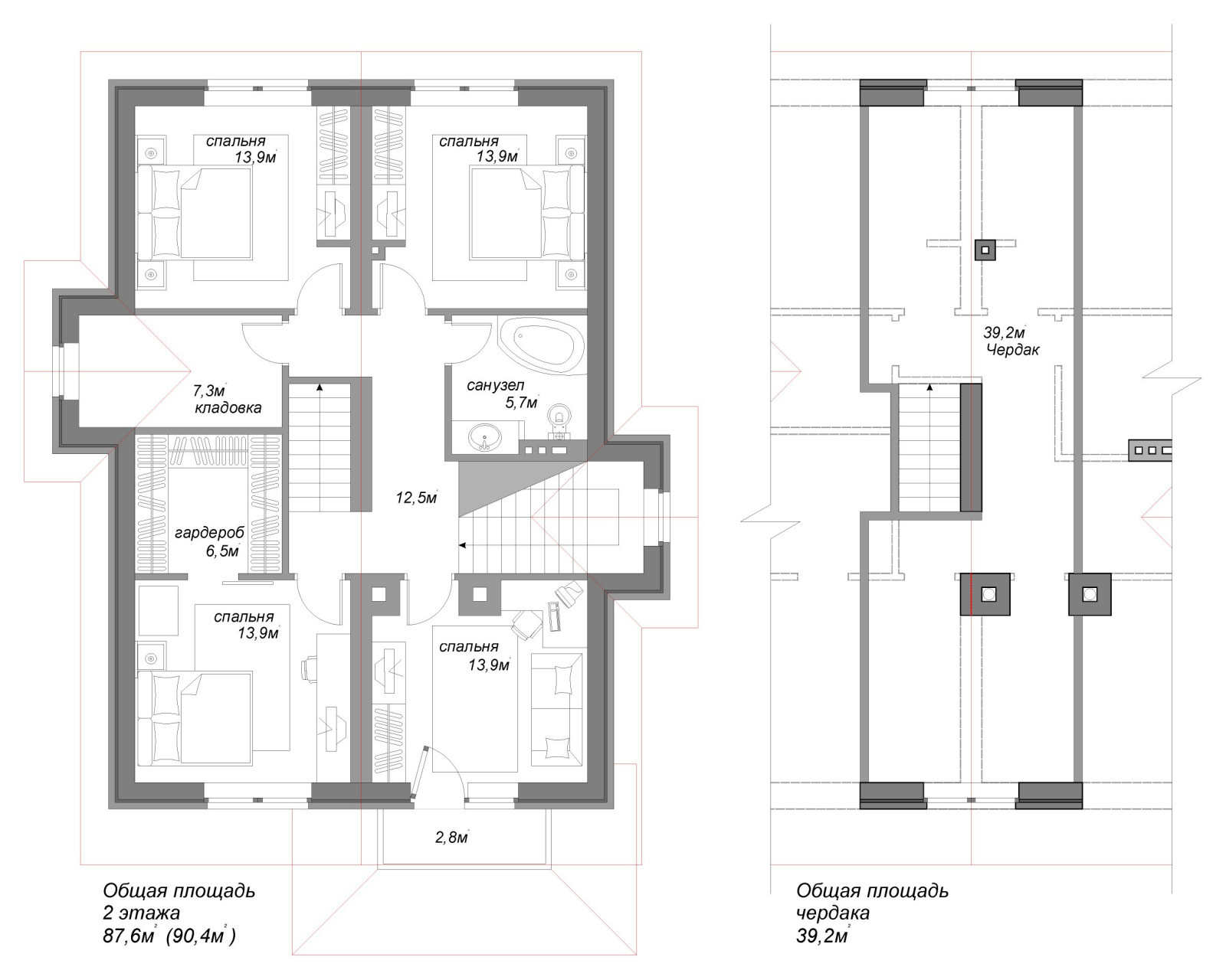
Проект "Жуковский", 2008г., общая площадь 221,2м2. Создан для узкого (17м.) участка. В плане представляет собой простой прямоугольный объем со сторонами 9 х 13 м. с пристыкованными по двум сторонам эркерами гостиной и лестничной клетки. На первом этаже располагаются: холл, гостиная с кухней, санузел, техническое помещение и спальня. Вход в дом оформлен в виде небольшой крытой веранды. На втором этаже находятся: 3 спальни, гардеробная, санузел и кладовка. В доме есть великолепный, эксплуатируемый чердак с комфортной лестницей, который может служить гостевой, детской, кабинетом, игровой, спортзалом и т.п. . Декоративное решение фасадов основывается на сочетании темно-коричневого кирпича , светлой клинкерной плитки, фахтверковых планок и рваного камня на цоколе. Уровень пола первого этажа, принятый за нулевую отметку, поднят над уровнем земли на 0,60 м., высота дома от уровня земли 9,79м.
10 фотографий










