Проект ЖК Путилково
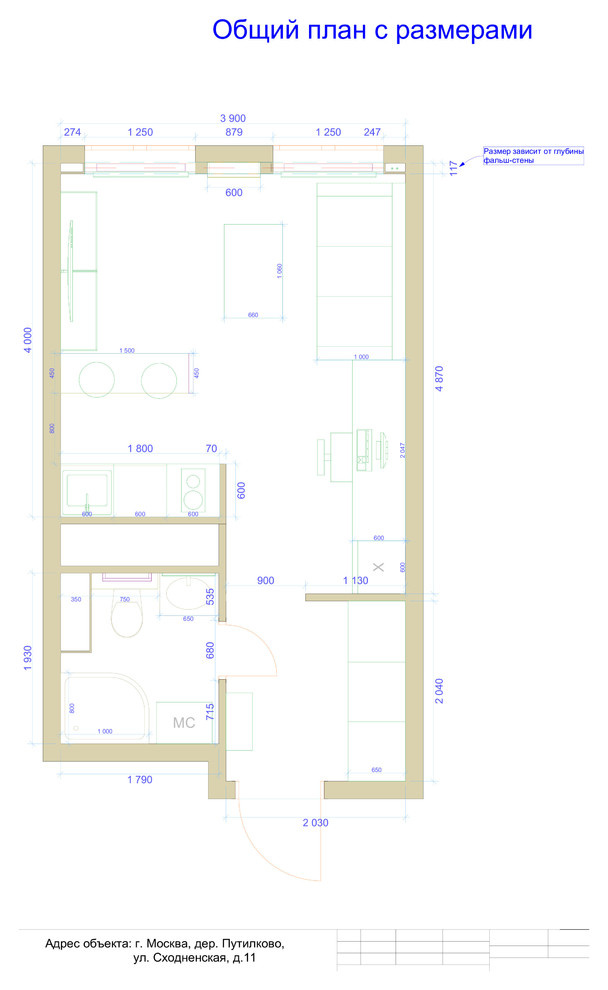
Данный проект квартиры, площадью менее 25 м.кв., хорошо демонстрирует, что и для таких маленьких квартир, очень важен грамотно составленный технический проект. Ведь в таких случаях особенно важно продумать использование каждого сантиметра площади. . Стоимость проекта составила 7500 руб.
Год реализации: 2018
Стоимость проектирования: 34 999 ₽
21 фотография




















