Проект жилого дома в Северной Осетии
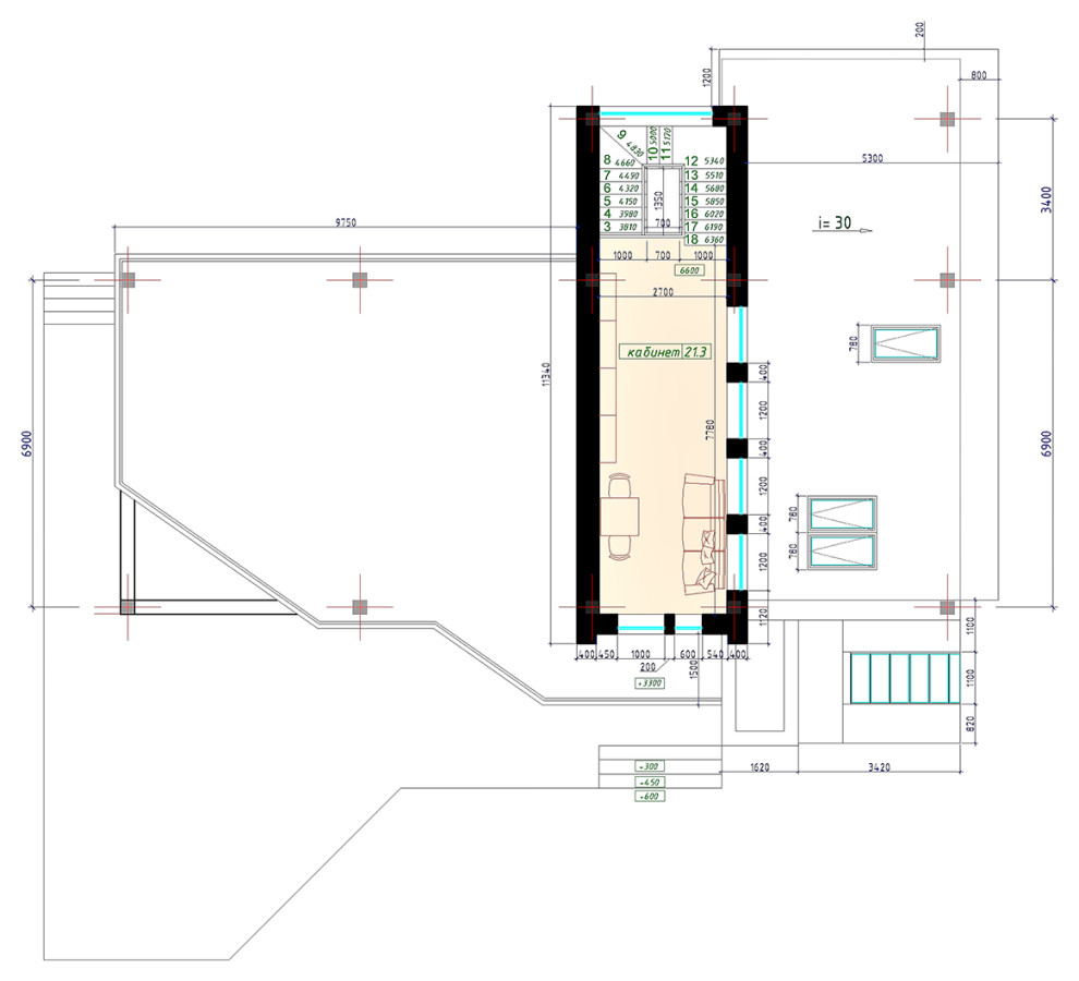
Заказчик дома- молодой юрист, живущий и работающий в Москве. Его главным требованием по ТЗ заключалось в том, чтобы предусмотреть отдельный рабочий кабинет с возможностью хранить обширную библиотеку. Кабинет он получил, аш на отдельном для этого этаже). Проект реализовывался очень легко благодаря нестандартному мышлению заказчика и его хорошему вкусу, насмотренности, доверию мне как архитектору.
Год реализации: 2018
Стоимость проектирования: 34 999 ₽
6 фотографий







