Проект жилого дома с мастерской /Архитектор Конюков/
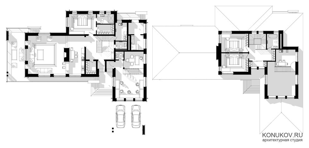
ПРОЕКТ НЕБОЛЬШОГО ЖИЛОГО ДОМА СО ВСТРОЕННОЙ МАСТЕРСКОЙ . Жилой дом для небольшой семьи с мастерской вместо гаража. Мастерская является частью здания. Участок неправильной формы с большим перепадом рельефа. Общая площадь дома 300 кв.м. Площадь мастерской 100 кв.м. Материал несущих стен - керамические блоки. Фундамент свайный.
Год реализации: 2018
Стоимость проектирования: 525 000 ₽
7 фотографий







