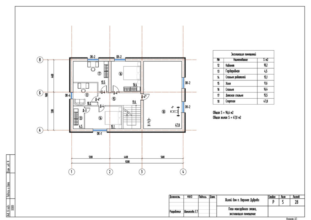
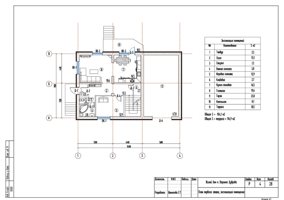
Профиль пользователяПроект жилого дома по имеющемуся фундаменту с мансардным этажом.Год реализации: 2018Стоимость проектирования: 34 999 ₽5 фотографийПоделитьсяСохранитьПроект жилого дома по имеющемуся фундаменту с мансардным этажом.ПоделитьсяСохранитьПлан первого этажаПоделитьсяСохранитьПлан мансардного этажаПоделитьсяСохранитьПроект жилого дома по имеющемуся фундаменту с мансардным этажом.ПоделитьсяСохранитьПроект жилого дома по имеющемуся фундаменту с мансардным этажом.ПоделитьсяСохранить