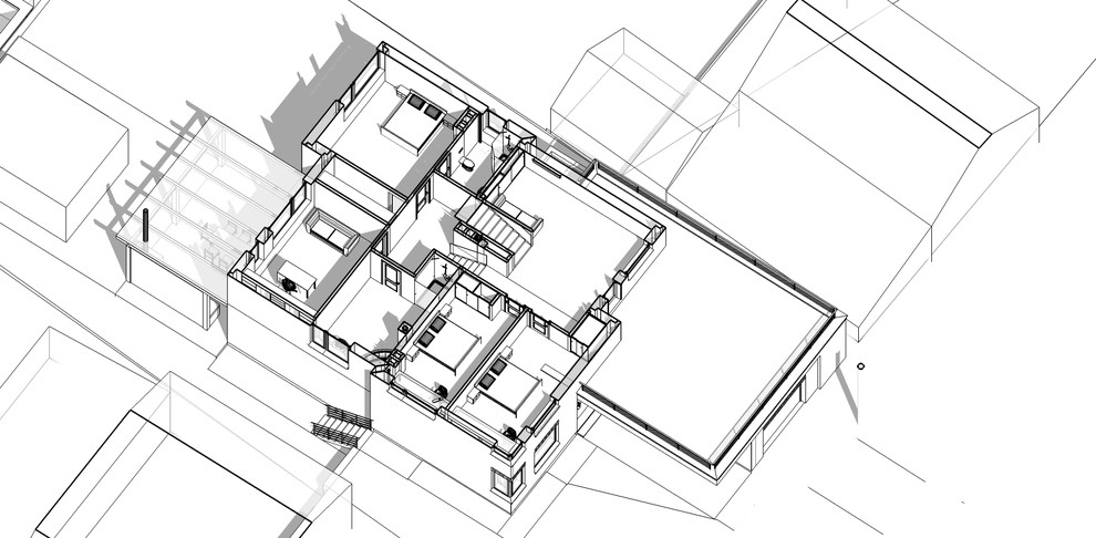
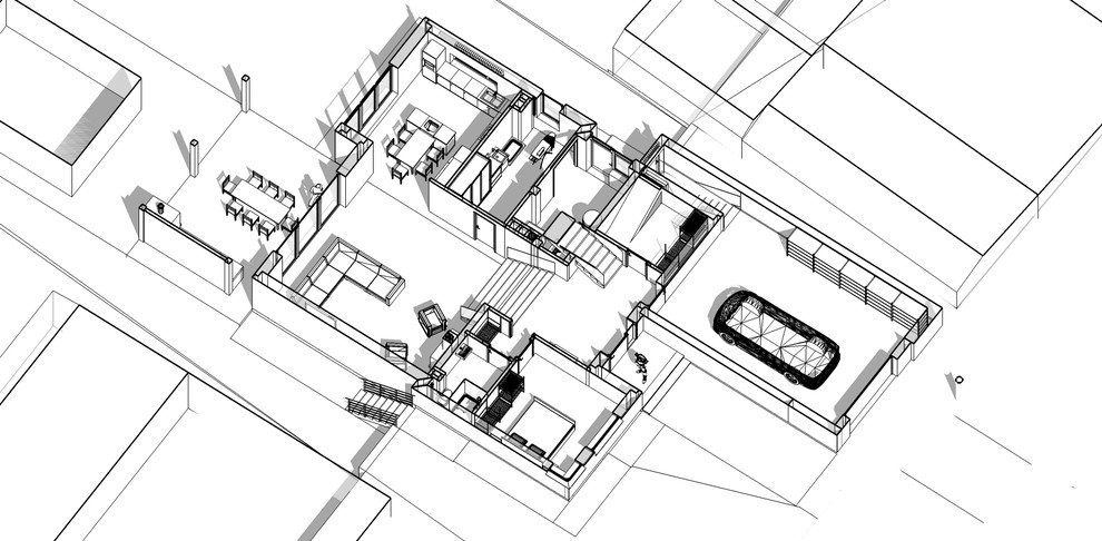
Проект загородного дома с плоской кровлей
Площадь помещений в границах стен- 274 кв.м. (без . учета террас, крыльца, гаража). . Площадь здания - 387 кв.м. (по внутренним границам внешних стен) . Размеры дома 13,3м х 21,6 м. . Материал стен- керамический кирпич, утепление плитой PIR, отделочный кирпич типа "баварская кладка". .
Год реализации: 2017
Стоимость проектирования: 135 000 ₽
г. Нижний Новгород
15 фотографий















