Проект загородного дома площадью 360 кв.м.
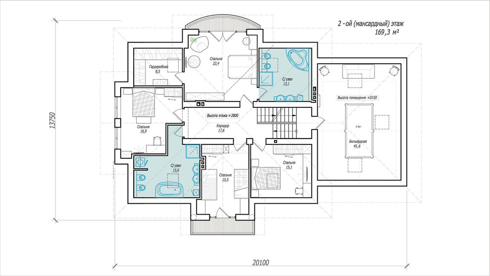
Индивидуальный жилой дом площадью 360 кв.м. . мансарда, мансардные окна, вальмовая крыша, балкон, большая открытая терраса, баня, бассейн, гараж с бильярдом. . Ландшафтный дизайн участка. .
Год реализации: 2016
Стоимость проектирования: 34 999 ₽
10 фотографий









