Проект вентиляции и кондиционирования таунхауса 350 м.кв.
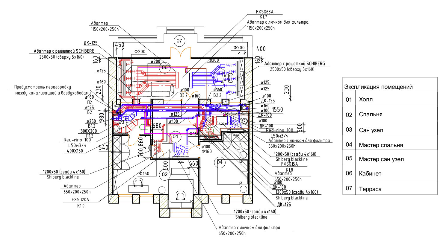
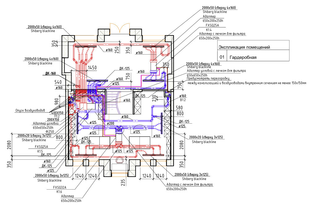
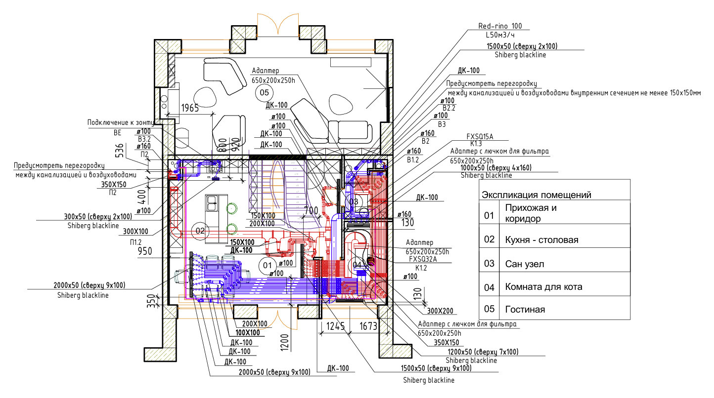
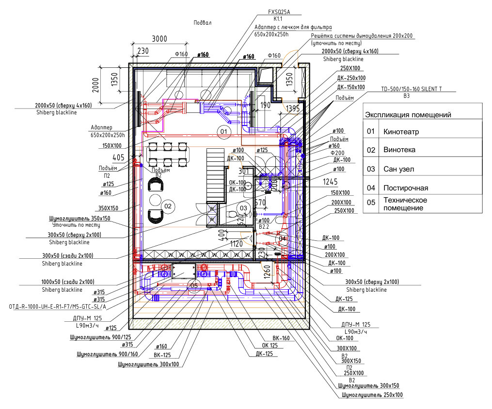
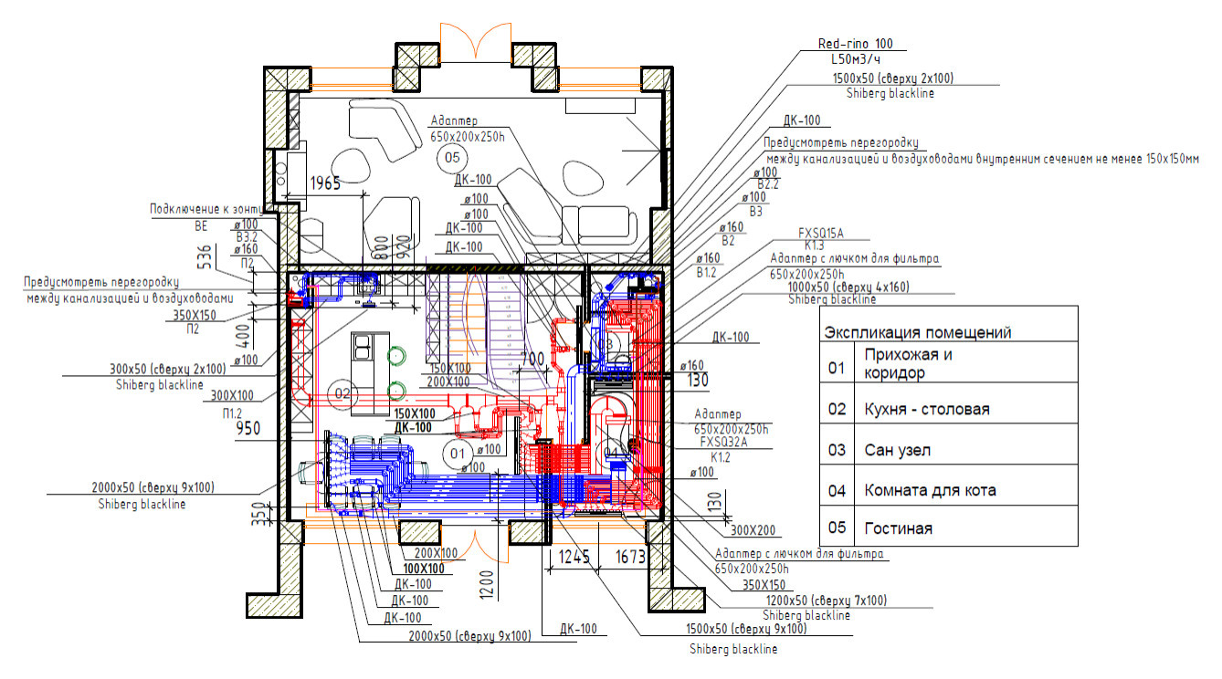
Проект вентиляции и кондиционирования разрабатывался под дизайн проект, совместно с дизайнерами. Учтены архитектурные особенности и по максимуму сокращён опуск потолков в помещениях. В качестве оборудования использованы премиальные производители систем кондиционирования Daikin и вентиляции Komfovent. В качестве воздухораспределителей использованы щелевые решётки и круглые диффузоры скрытого монтажа.
Год реализации: 2025
Стоимость проектирования: 135 000 ₽
г. Москва
12 фотографий












