Проект: ул. Новаторов, 80 кв.м.
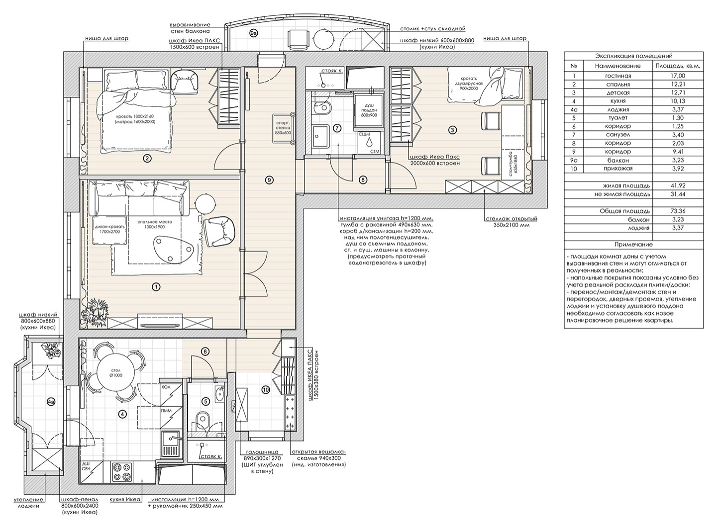
Эскизный проект трехкомнатной квартиры в панельном доме для молодой семьи с двумя детьми. Скандинавский стиль, эконом сегмент. Данный проект согласован полностью по коллажам, без разработки трехмерных визуализаций, выгодное решение в случае ограниченного бюджета или сжатых сроков на проектирование.
Год реализации: 2019
Стоимость проектирования: 135 000 ₽
г. Москва, улица Новаторов
47 фотографий















































