Проект Центра Русской Культуры в селе Верх Уймон
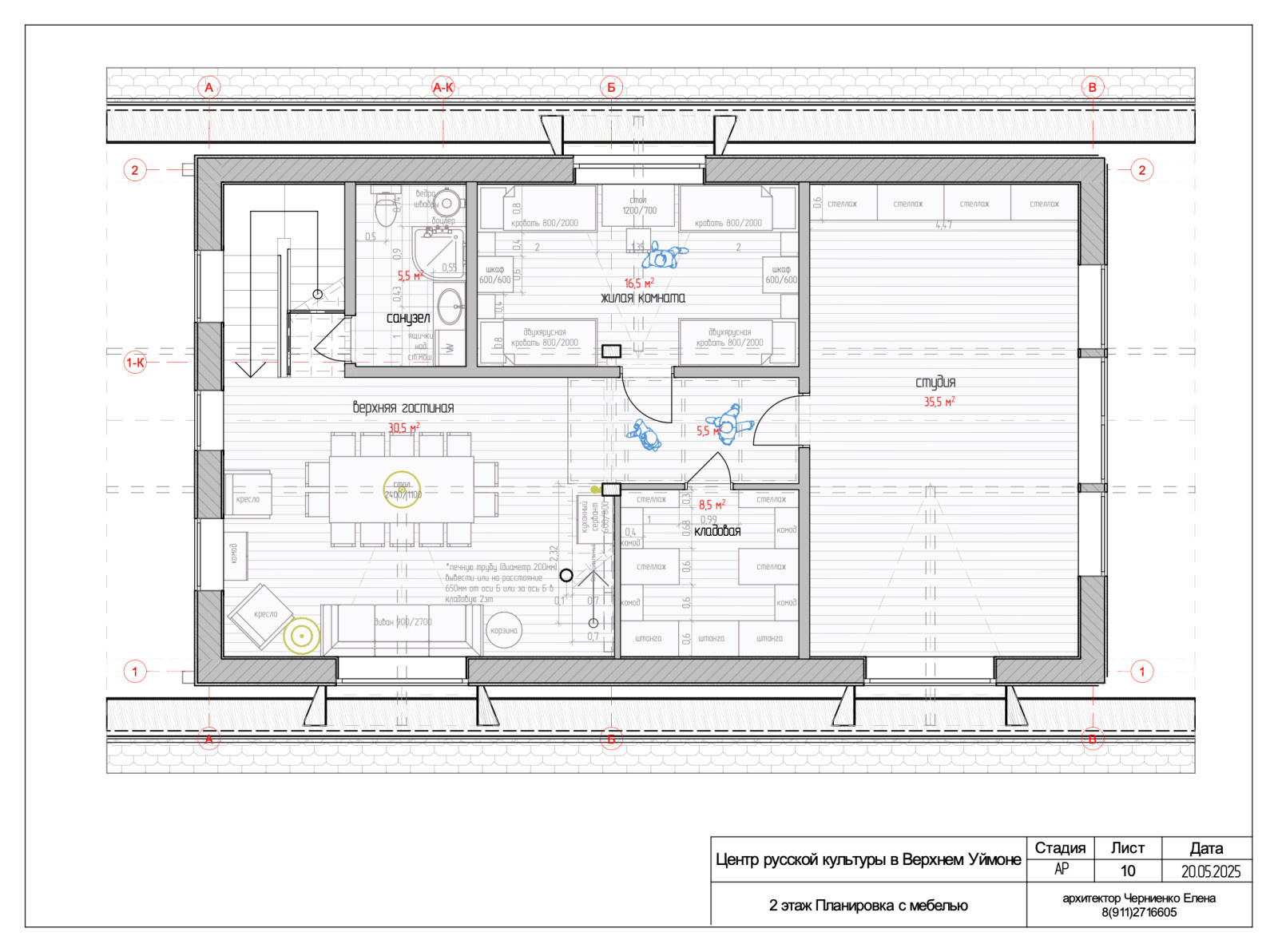
В этом проекте "Центр русской культуры в Верх Уймоне" ситуация тоже индивидуальная: тут заказчики семья которые очень любят фольклор и живут в нем! Находится в деревне старообрядцев в горах Алтая. Тут на участке уже начали строительство по проекту (когда то давно сделанному). Заказчики засомневались в верности того что они строят и срочно попросили меня сделать 3Д визуализацию их здания по их проекту. Далее выяснилось что проект нужно полностью переработать в рамках уже имеющегося фундамента и начала стройки. Основа проекта - планировка. Мой метод работы - изнутри наружу и поэтому из внутренней планировки рождается форма. Но тут я делала проект, когда строители уже выкладывали стены с оконными проемами 1 этажа. В этих рамках удалось сделать удобную планировку соответствующую богатой культурной жизни заказчиков. Проект сейчас реализуется, уложена кровля и установленны окна. Второй очередью я сделала планы электрики и в этом сезоне заказчики планируют осилить электрику и прочие коммуникации. Тут я тоже выезжаю на объект и курирую процесс по мере запроса.
7 фотографий







