Проект трёхкомнатной квартиры
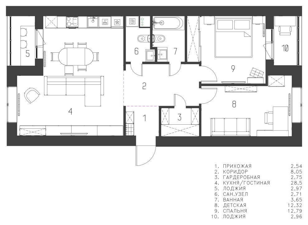
Трёхкомнатная квартира с объединённой кухней-гостиной для молодой семьи. Интерьер выполнен в светлых тонах с использованием элементов из скандинавского стиля.
Год реализации: 2021
19 фотографий
Трёхкомнатная квартира с объединённой кухней-гостиной для молодой семьи. Интерьер выполнен в светлых тонах с использованием элементов из скандинавского стиля.
19 фотографий
