Проект реконструкции квартиры на Кисловодском переулке
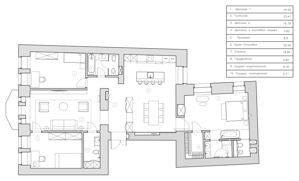
Мы с Юлией Эйдиновой разработали эскизный проект реконструкции квартиры в Кисловском переулке. Генеральной идеей интерьера общих зон является перетекание одного помещения в другое. Это было реализовано использованием одних и тех же материалов и удобной продуманной планировкой. Приватные зоны так же выполнены в идентичных материалах.. При проектировании мастер-спальни мы сделали ее максимально удобной для хозяев. Развели зоны туалета и душевой в разные помещения, чтобы их можно было использовать независимо друг от друга. А центром композиции спальни мы сделали отдельно стоящую ванну в бронзовом обрамлении, подсвеченную мягким светом. Интерьер квартиры построен на контрасте светлого и темного, который исполнен текстильными обоями, шпоном дерева и темной бронзой. Сочетание дорогих материалов и роскошной мебели создает атмосферу благополучия и богатства.
14 фотографий















