Проект Rect
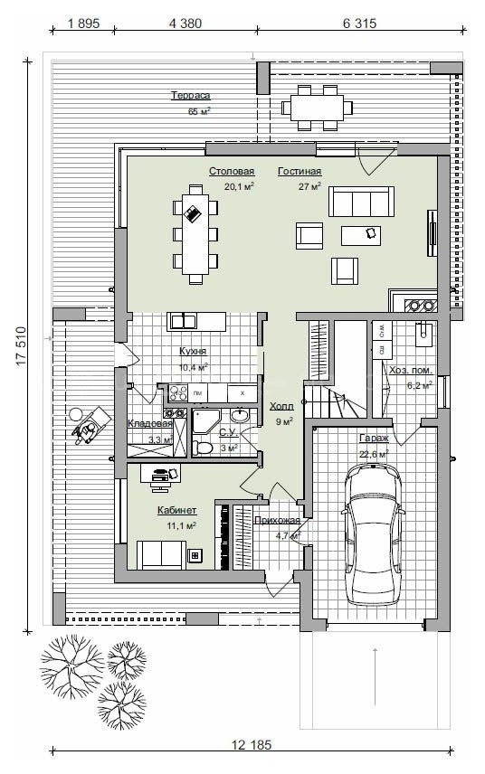
Площадь: 250 м2 . Комнат: 6 . Санузлов: 2 . Жилая площадь: 185 м² . Площадь террас и балконов: 65 м² . Технология: Газобетон . Категория: Big Family . Теплый контур: 6 399 900 руб . Инженерные сети: 1 890 900 руб . Отделка: 2 550 378 руб
Год реализации: 2019
Стоимость проектирования: 5 250 000 ₽
11 фотографий












