Проект рабочей документации (чертежей) для квартиры в Лондоне
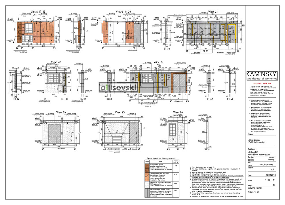
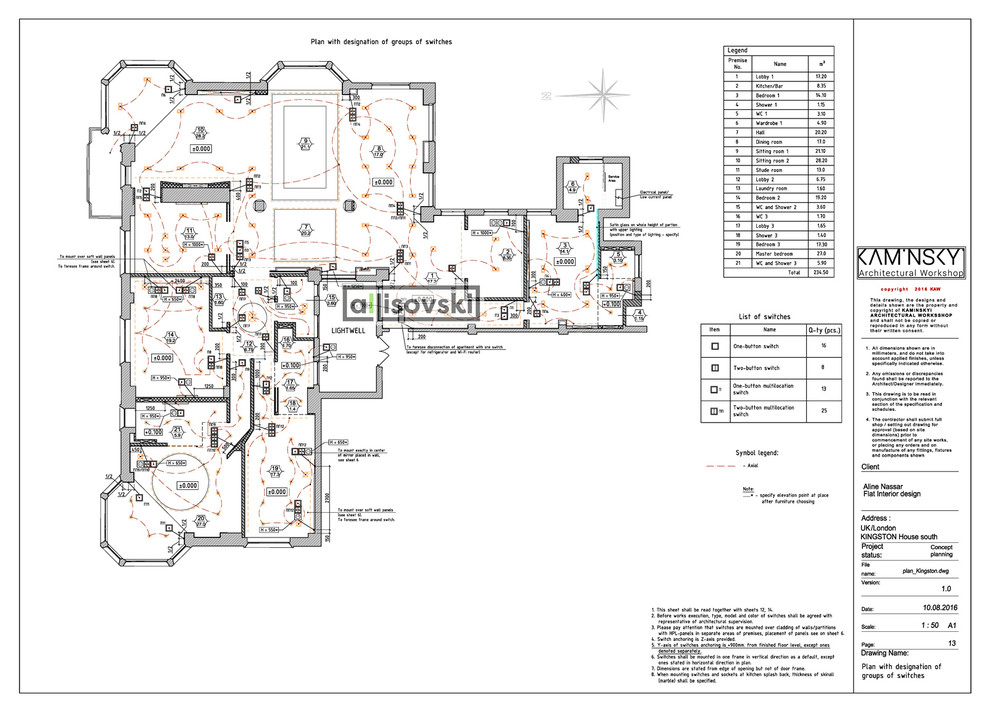
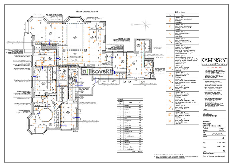
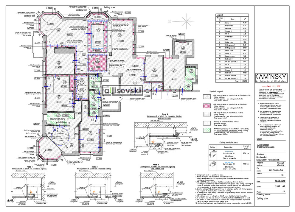
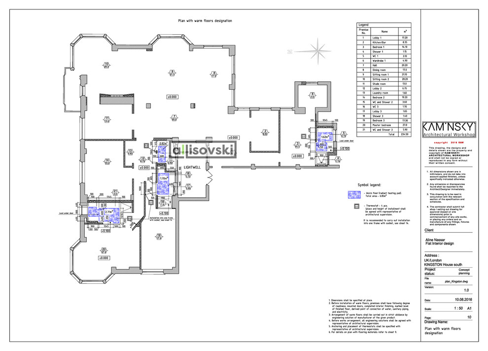
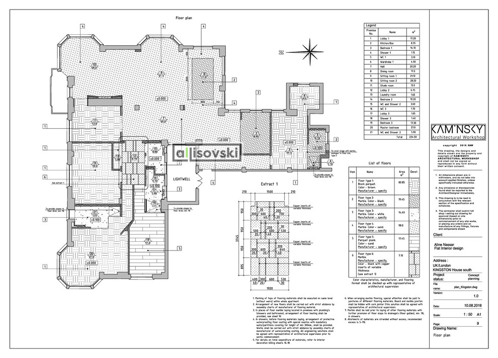
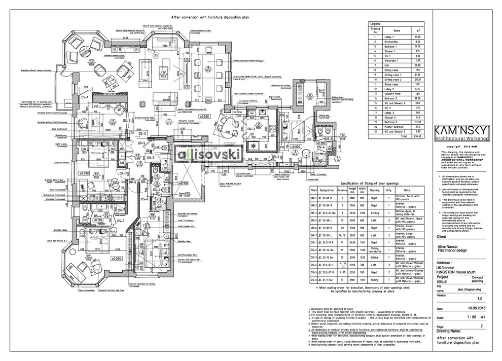
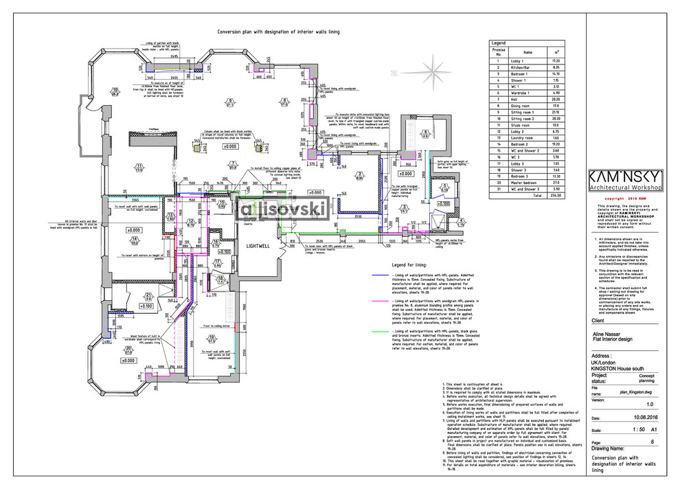
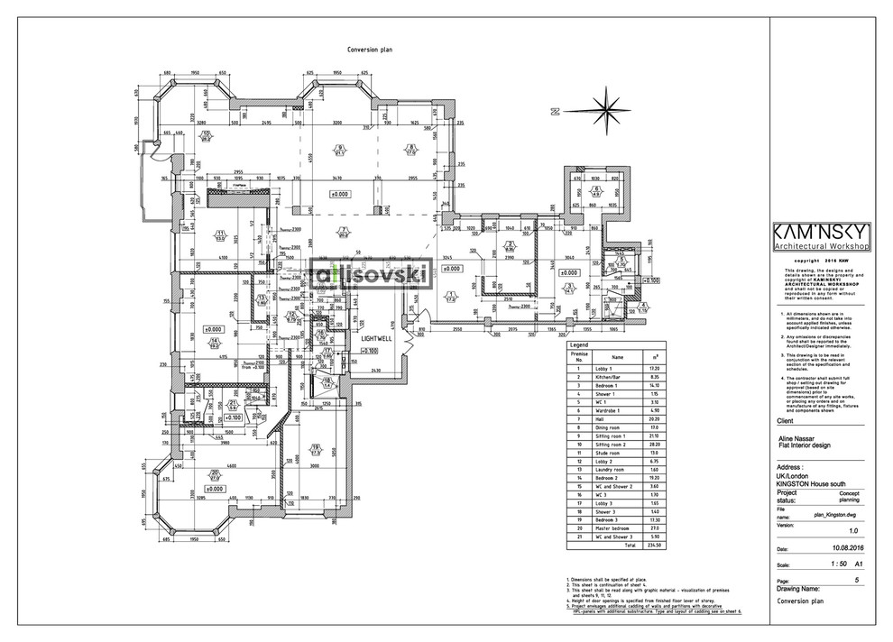
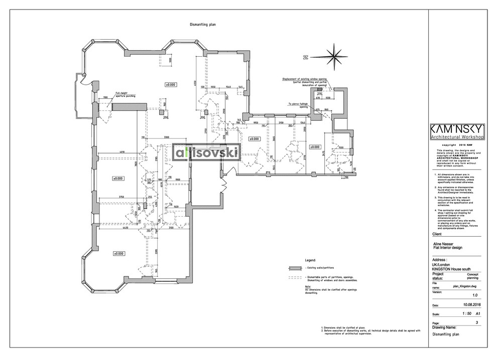
Проект рабочей документации (чертежей) для дизайн интерьера многокомнатной квартиры, расположенной в Лондоне. Technical design KINGSTON House London UK. Общая площадь квартиры — 234.50м2. . . Стояла задача разработать комплект чертежей для реализации готового дизайн-проекта (3D) квартиры, разработанного дизайнером. Выполнена максимальная проработка чертежей. . . Проект был выполнен на английском языке [ENG]. . . Срок выполнения проекта составил 35 дней, с учетом всех изменений и правок, а также технического перевода на английский язык. . . Посмотреть весь проект на сайте https://allisovski.com/london/ . Проект выполнен для студии Станислава Каминского https://kaminskyi.com/
Год реализации: 2016
27 фотографий




























