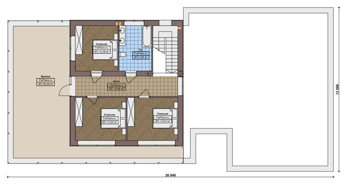
Профиль пользователяПроект одноэтажного дома 13х24м S325м2 F-16838Год реализации: 2025Стоимость проектирования: 34 999 ₽8 фотографий ПоделитьсяПроект одноэтажного дома 13х24м S325м2 F-16838ПоделитьсяСохранитьПроект одноэтажного дома 13х24м S325м2 F-16838ПоделитьсяСохранитьПроект одноэтажного дома 13х24м S325м2 F-16838ПоделитьсяСохранитьПроект одноэтажного дома 13х24м S325м2 F-16838ПоделитьсяСохранитьПроект одноэтажного дома 13х24м S325м2 F-16838ПоделитьсяСохранитьПроект одноэтажного дома 13х24м S325м2 F-16838ПоделитьсяСохранитьПроект одноэтажного дома 13х24м S325м2 F-16838ПоделитьсяСохранитьПроект одноэтажного дома 13х24м S325м2 F-16838ПоделитьсяСохранить