Проект №25 ул.Народная
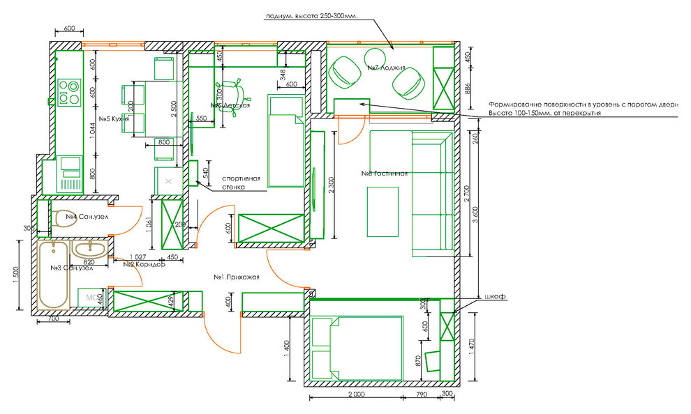
Дизайн интерьера двухкомнатной квартиры на ул. Народная г. Нижний Новгород. Хозяева квартиры молодая семья. Пожеланиями ребят было создать современный интерьер в черно-белой цветовой гамме. Однако мы взяли на себя смелость и ввели еще бирюзовые, и зеленые оттенки. Квартира имеет не большую площадь, поэтому доминирует все же белый цвет, как в мебели так и в отделке стен. В проекте использованы авторские работы художника https://vk.com/punkillustrator
Год реализации: 2016
Стоимость проектирования: 34 999 ₽
13 фотографий













