Проект "Наедине с природой" Алексея Федористова
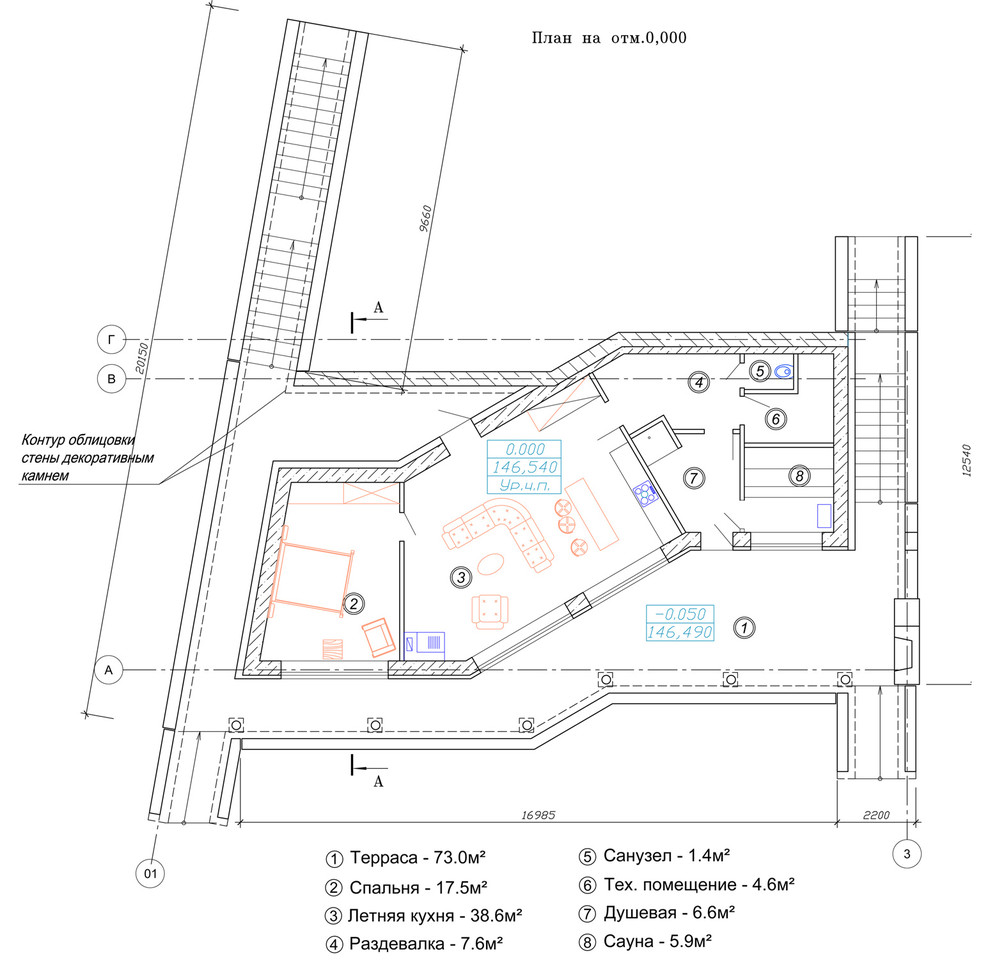
Объект разрабатывался как гостевой дом с баней, но на первом этапе, пока будет строиться основной хозяйский дом выше по склону, заказчики планируют сами использовать его для отдыха на природе. . . Основным критерием было пожелание заказчиков – не закрывать строением великолепные виды на озеро и окружающие ландшафты и вместе с тем расположить его как можно ближе к озеру. . . Поэтому и было принято необычное для нашего региона решение – интегрировать объект в окружающий ландшафт. А чтобы строение смотрелось ещё более органично на местности, основным отделочным материалом фасада был выбран крупноформатный камень «Хантли» (605−10), а для ступеней и дорожек – декоративная тротуарная плита «Тиволи» (S918−14), напоминающая доломитовый известняк, значительные залежи которого находятся в данной местности и используются в местном строительстве. .
10 фотографий











