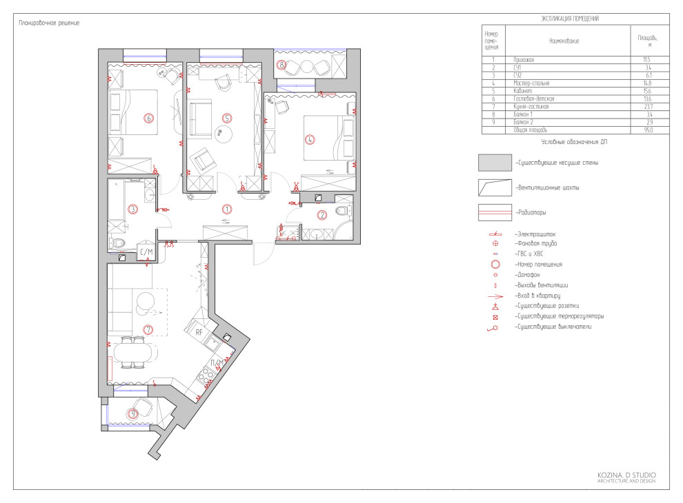
Проект квартиры в Санкт-Петербурге 95 кв.м.
Проект разработан для молодой женщины и ее семьи. Основной задачей при проектировании было вписаться в существующие отделочные материалы с минимальными переделками и создать классический интерьер. В квартире разработано несколько функциональных зон: кухня-гостиная с выходом на балкон, мастер спальня с балконом, гостевая спальня, прихожая, два санузла и кабинет, которые выдержаны в едином классическом стиле с акцентными цветами. . . Кухня-гостиная . Данное помещение имеет сложную геометрию, поэтому кухня и ТВ зона нивелируют этот момент за счет того, что становятся единым элементом помещения. В кухне-гостиной уже был приобретен диван, поэтому основной задачей было вписать его в желаемый дизайн интерьера.
22 фотографии























