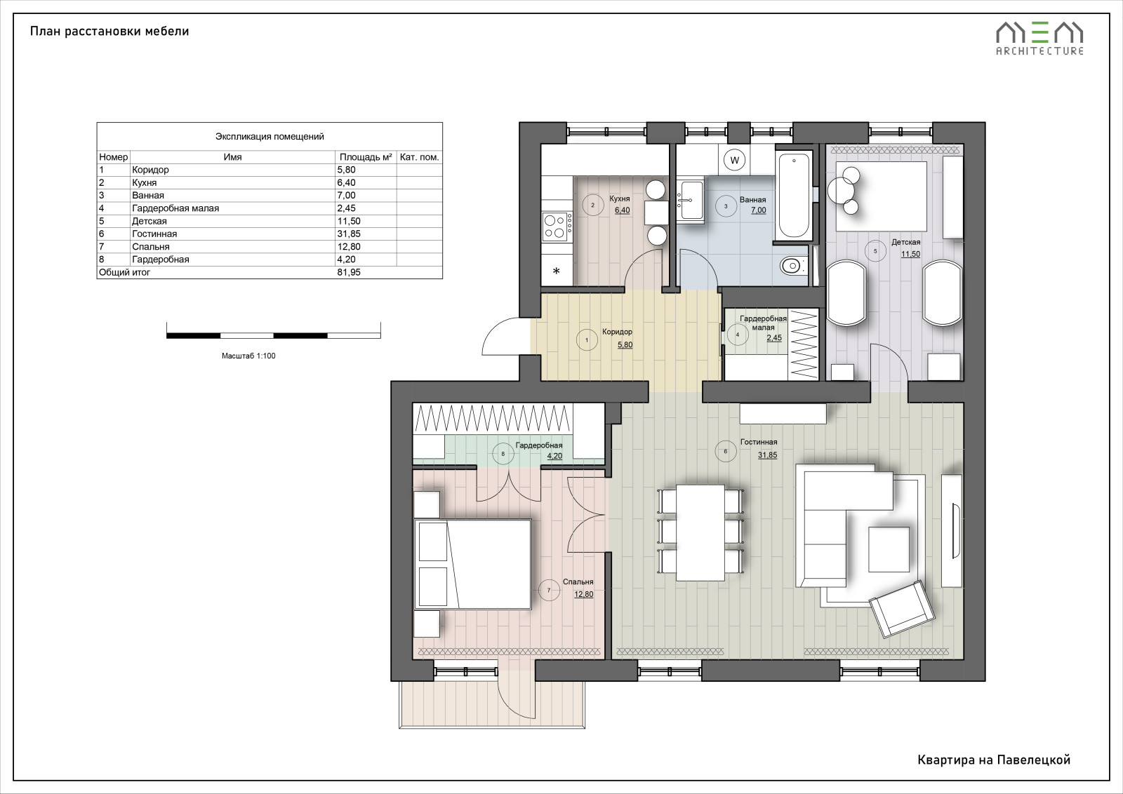
Проект квартиры для молодой семьи на Павелецкой - 80м2
Проект квартиры для молодой семьи. Функционально, просторно и ничего лишнего - таковы были пожелания заказчика, мы справились )
Год реализации: 2018
Стоимость проектирования: 135 000 ₽
10 фотографий










