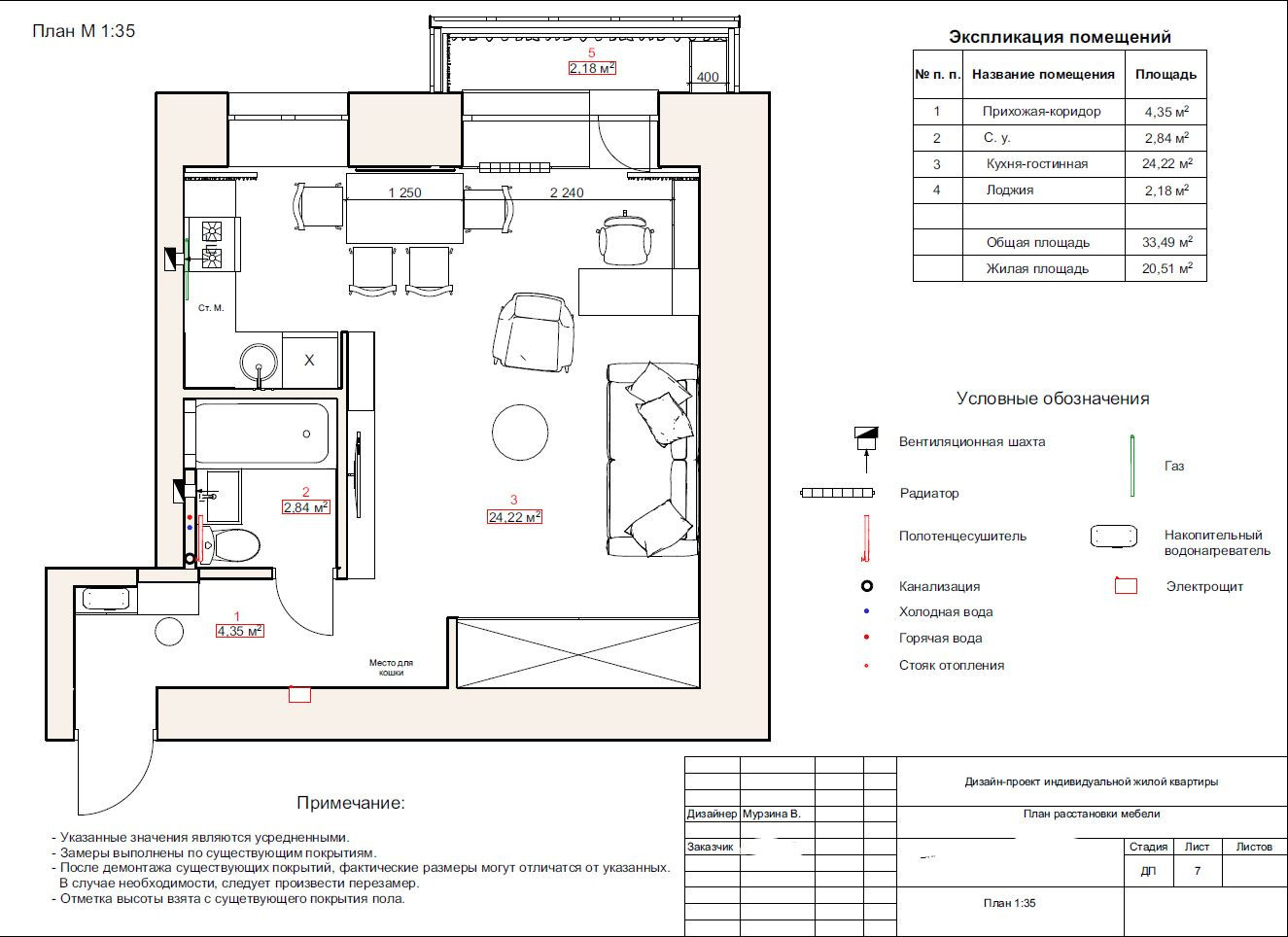
Проект квартиры 33 м2
Проект однокомнатной квартиры в "хрущевке" для холостяка. . По пожеланию заказчика, интерьер квартиры выполнен с светлых бежевых тонах с минимальными вложениями.
Год реализации: 2021
Стоимость проектирования: 34 999 ₽
11 фотографий











