Проект квартира - студия /28 кв.м/
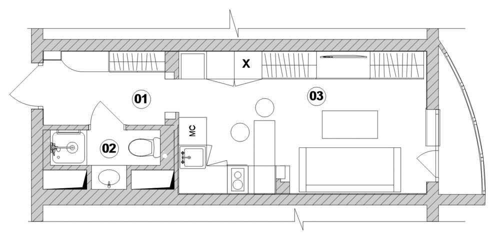
К нам в студию обратилась молодая девушка 25 лет с просьбой выполнить визуальную часть проекта ее новой квартиры - студии. Поскольку бюджет на ремонт был ограниченным перепланировка стен не выполнялась. В проекте зонирование выполнили за счет размещения мебели. В проекте задействованы следующие отделочные материалы: . санузел - керамогранит " Italon", . гостиная-кухня и прихожая на стенах виниловые обои с геометрическим рисунком, полы - плитка ПВХ на замковом креплении. Мебель была предложена в светлых тонах, фасады - лаковые, ламинированные. Столешница и остров кухни выполнены из искусственного камня.
Год реализации: 2016
Стоимость проектирования: 34 999 ₽
6 фотографий







