logo
Войти

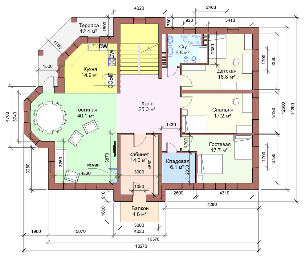
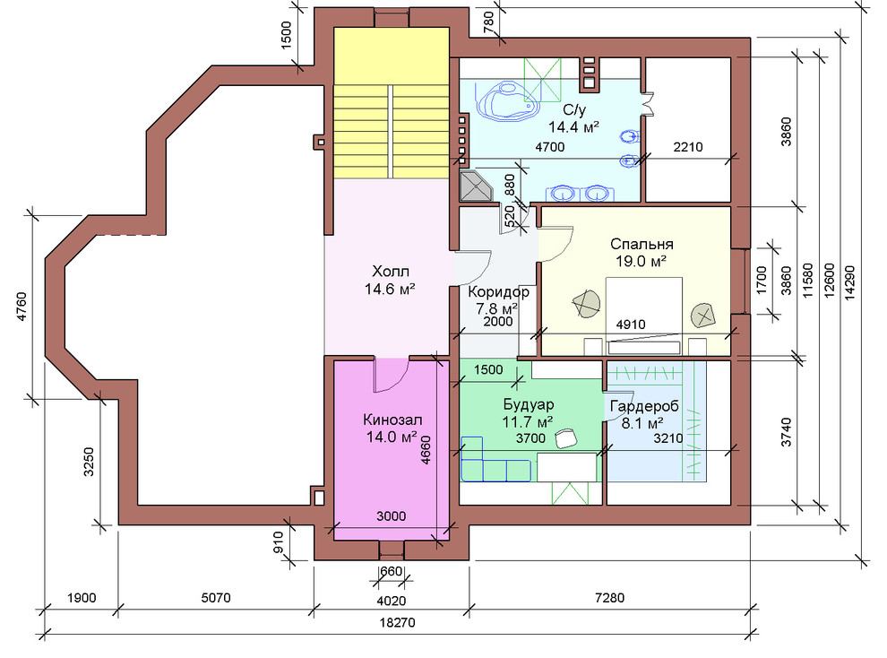
Проект коттеджа 2

Год реализации: 2015
Стоимость проектирования: 135 000 ₽
photo

4 фотографии

Проект коттеджа 2
Проект коттеджа 2
Проект коттеджа 2
Проект коттеджа 2
Проект коттеджа 2
Проект коттеджа 2
Проект коттеджа 2
Проект коттеджа 2
Фоновое изображение профиля ----- ---
Фото профиля ----- ---

----- ---
Аккаунт удален
----- ---

Все проекты

Реконструкция коттеджа

Проект коттеджа 13

Реконструкция дачного дома в Подмосковье

Проект коттеджа 7

Проект коттеджа 6

Проект коттеджа 5

Проект коттеджа 4

Смотреть все
Флатика
О насМы в прессеFAQКонтактыМатериалыКарта сайта

«Флатика» в соцсетях:

ПинтерестМаксВкДзенTelegramTelegram Pro
Pro
Instagram

Продукт компании Meta, признанной экстремистской организацией, деятельность которой запрещена в РФ

Пользовательское соглашениеПолитика в отношении обработки персональных данных

© 2026 Flatica

ФотоЭкспертыСтатьи