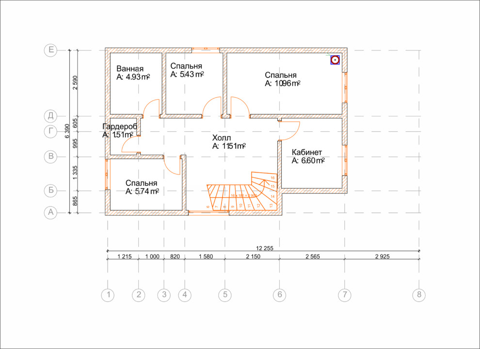
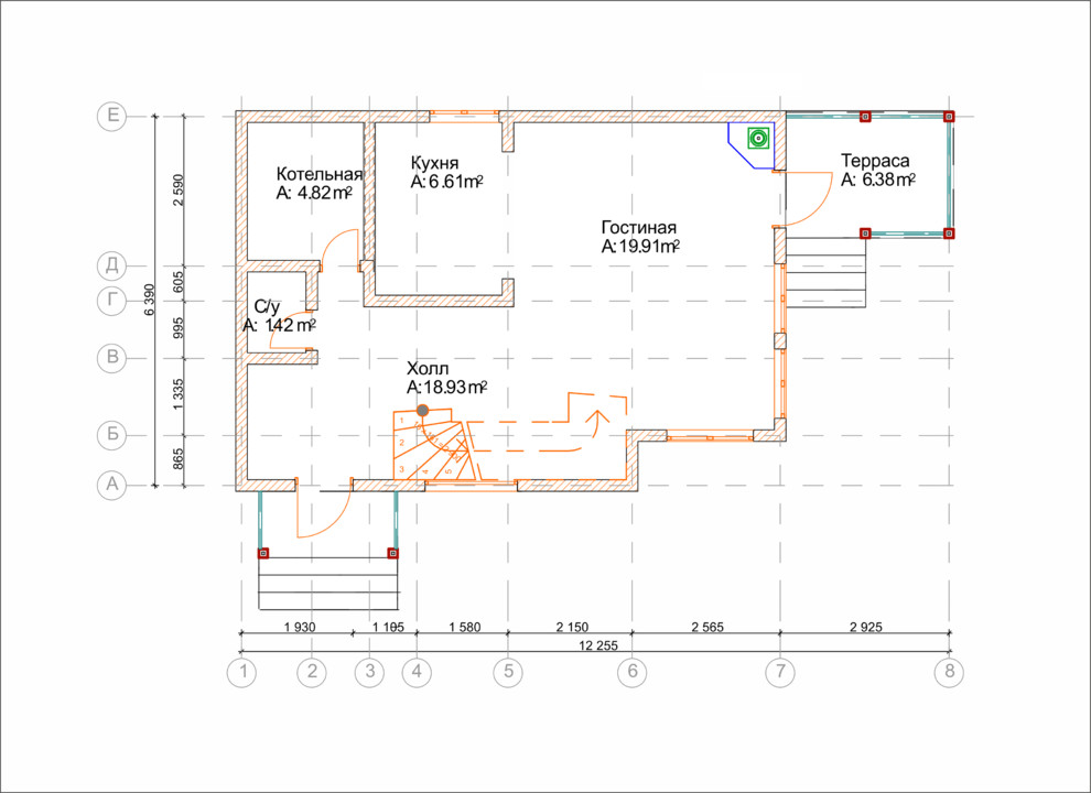
Профиль пользователяПроект каркасного дома 103 м2 - 2 этажаГод реализации: 2017Стоимость проектирования: 34 999 ₽6 фотографийПоделитьсяСохранитьПроект каркасного дома 103 м2 - 2 этажаПоделитьсяСохранитьПроект каркасного дома 103 м2 - 2 этажаПоделитьсяСохранитьПроект каркасного дома 103 м2 - 2 этажаПоделитьсяСохранитьПроект каркасного дома 103 м2 - 2 этажаПоделитьсяСохранитьПроект каркасного дома 103 м2 - 2 этажаПоделитьсяСохранитьПроект каркасного дома 103 м2 - 2 этажаПоделитьсяСохранить