logo
Войти
Профиль пользователя

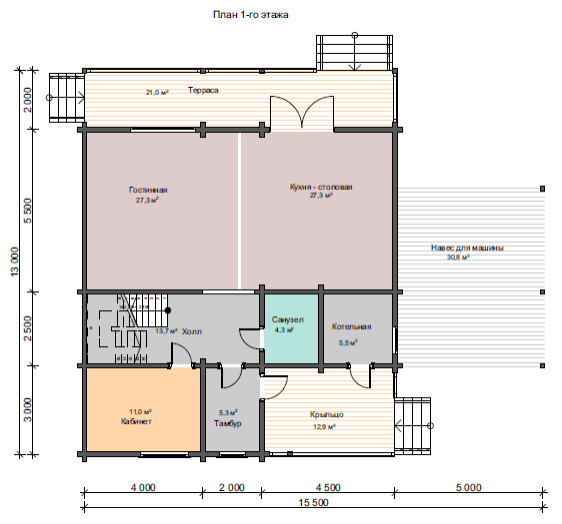
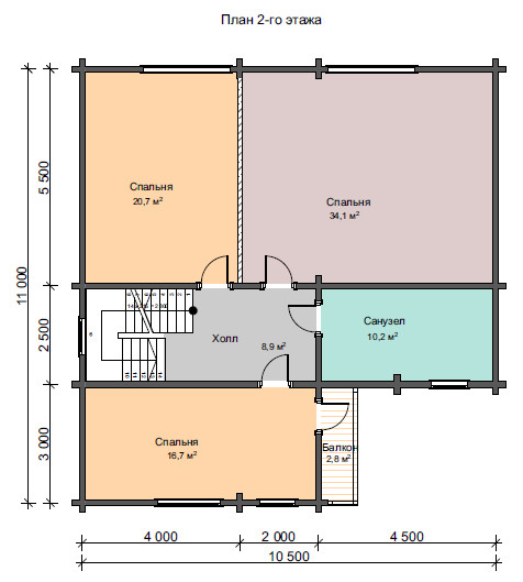
Проект каркас22

Год реализации: 2021
photo

5 фотографий

Проект каркас22
Проект каркас22
Проект каркас22
Проект каркас22
Проект каркас22
Проект каркас22
Проект каркас22
Проект каркас22
Проект каркас 22
Проект каркас 22
Фоновое изображение профиля Марина Васецькая
Фото профиля Марина Васецькая

Марина ВасецькаяМарина Васецькая

0

0 отзывов

Архитекторы

Контакты

г. Санкт-Петербург, Челюскина 2

Все проекты

Проект 12

Интерьер на лесной

КП "Особый Статус"

Подмосковье

Проект дома "Земляничные поляны"

Клееный брус

Смотреть все
Флатика
О насМы в прессеFAQКонтактыМатериалыКарта сайта

«Флатика» в соцсетях:

ПинтерестМаксВкДзенTelegramTelegram Pro
Pro
Instagram

Продукт компании Meta, признанной экстремистской организацией, деятельность которой запрещена в РФ

Пользовательское соглашениеПолитика в отношении обработки персональных данных

© 2026 Flatica

ФотоЭкспертыСтатьи