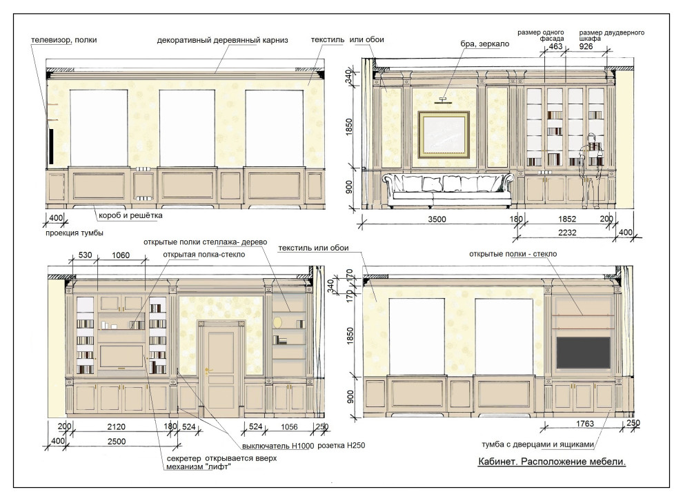
Проект кабинета
Я выполнила дизайн-проект и проект меблировки в помещении с отделкой. Подобран цвет мебели, сочетающийся с цветом паркета, учтены и нейтрализованы стилевые нестыковки, Т.юо. проведена доработка общей концепции, стилевое и цветовое решение. В настоящее время панели и мебель, пилястры, короба радиаторов и пр. монтируются на объекте. (Выполняется на моём столярном производстве)
Год реализации: 2022
Стоимость проектирования: 2 450 000 ₽
12 фотографий













