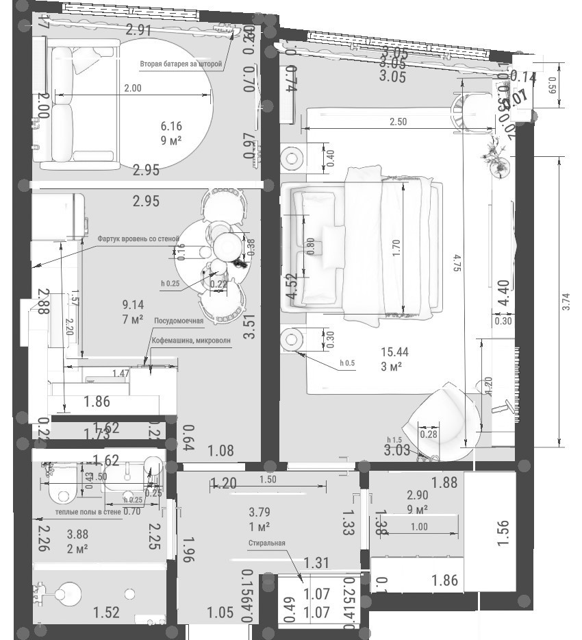
Проект Южная квартира
Хотите быстрее начать ремонт, но сомневаетесь как воплотятся ваши задумки? . Есть решение - "ЭКСПРЕСС ПРОЕКТ". . За две - три недели, в зависимости от площади помещения, подготовлю планировочное решение с указанием размеров мебели и коллаж для помещения в любой точки России.
Год реализации: 2024
Стоимость проектирования: 34 999 ₽
4 фотографии




