Проект интерьера квартиры в ЖК "Доминанта"
Планировочное решение и рабочие чертежи для квартиры площадью 163 кв.м.
Год реализации: 2020
Стоимость проектирования: 525 000 ₽
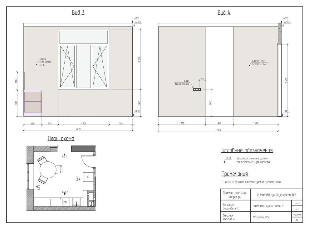
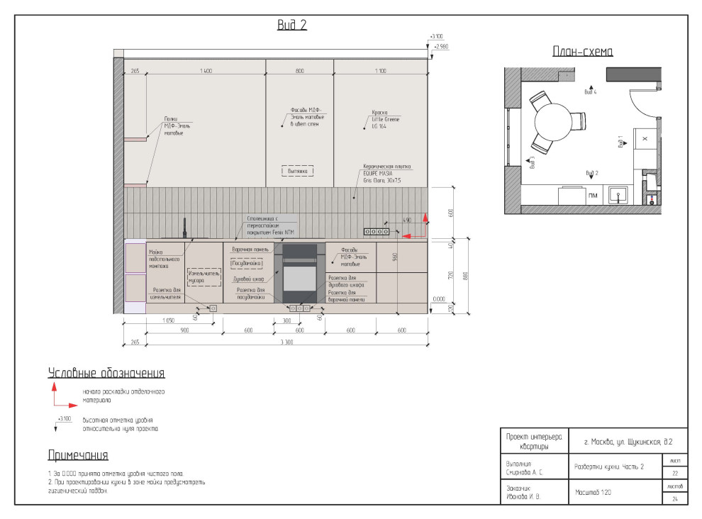
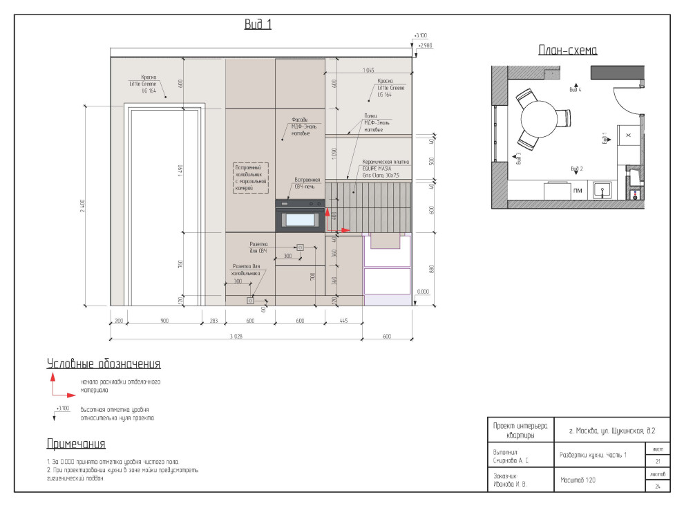
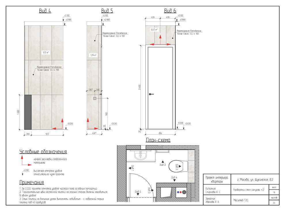
г. Москва, 2 Щукинская улица, Северо-Западный административный округ
23 фотографии
























