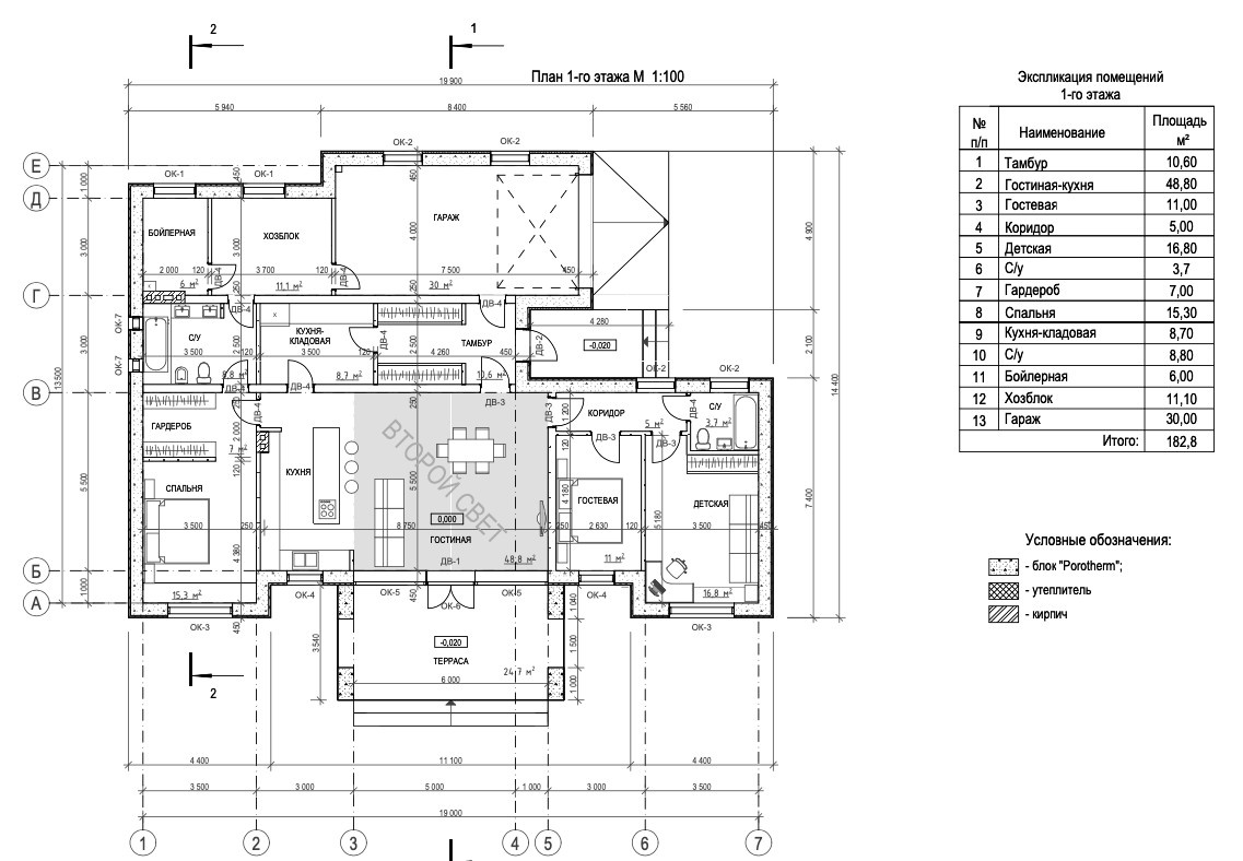
Профиль пользователяПроект индивидуального дома в городе ИстраГод реализации: 2021Стоимость проектирования: 12 250 000 ₽5 фотографий ПоделитьсяПроект индивидуального дома в городе ИстраПоделитьсяСохранитьПроект индивидуального дома в городе ИстраПоделитьсяСохранитьПроект индивидуального дома в городе ИстраПоделитьсяСохранитьПроект индивидуального дома в городе ИстраПоделитьсяСохранитьПроект индивидуального дома в городе ИстраПоделитьсяСохранить