logo

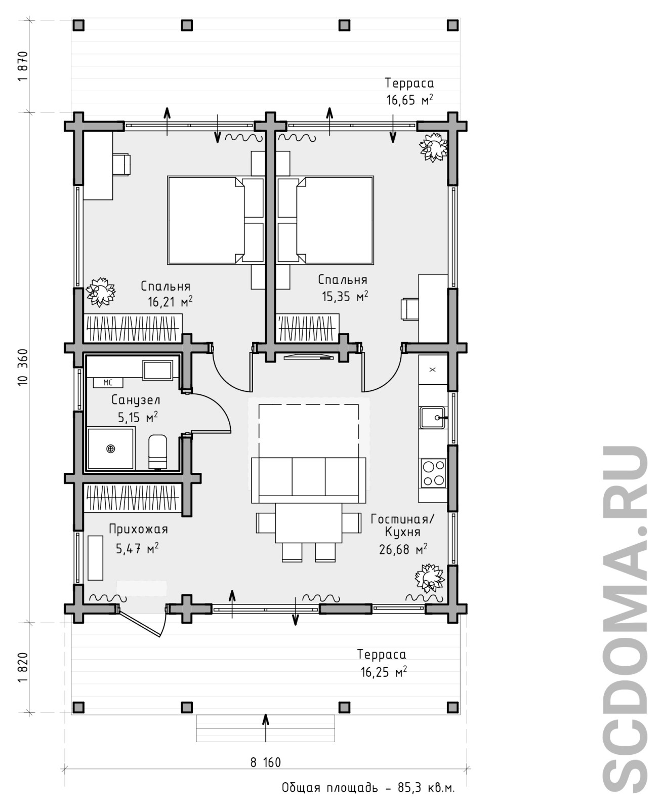
Проект гостевого дома 76 кв.м.

Год реализации: 2020
photo

4 фотографии

Проект гостевого дома 76 кв.м.
Проект гостевого дома 76 кв.м.
Проект гостевого дома 76 кв.м.
Проект гостевого дома 76 кв.м.
Проект гостевого дома 76 кв.м.
Проект гостевого дома 76 кв.м.
Проект гостевого дома 76 кв.м.
Проект гостевого дома 76 кв.м.
Фоновое изображение профиля Иван Горнов
Фото профиля Иван Горнов

Иван Горнов

Архитекторы

Контакты

г. Москва