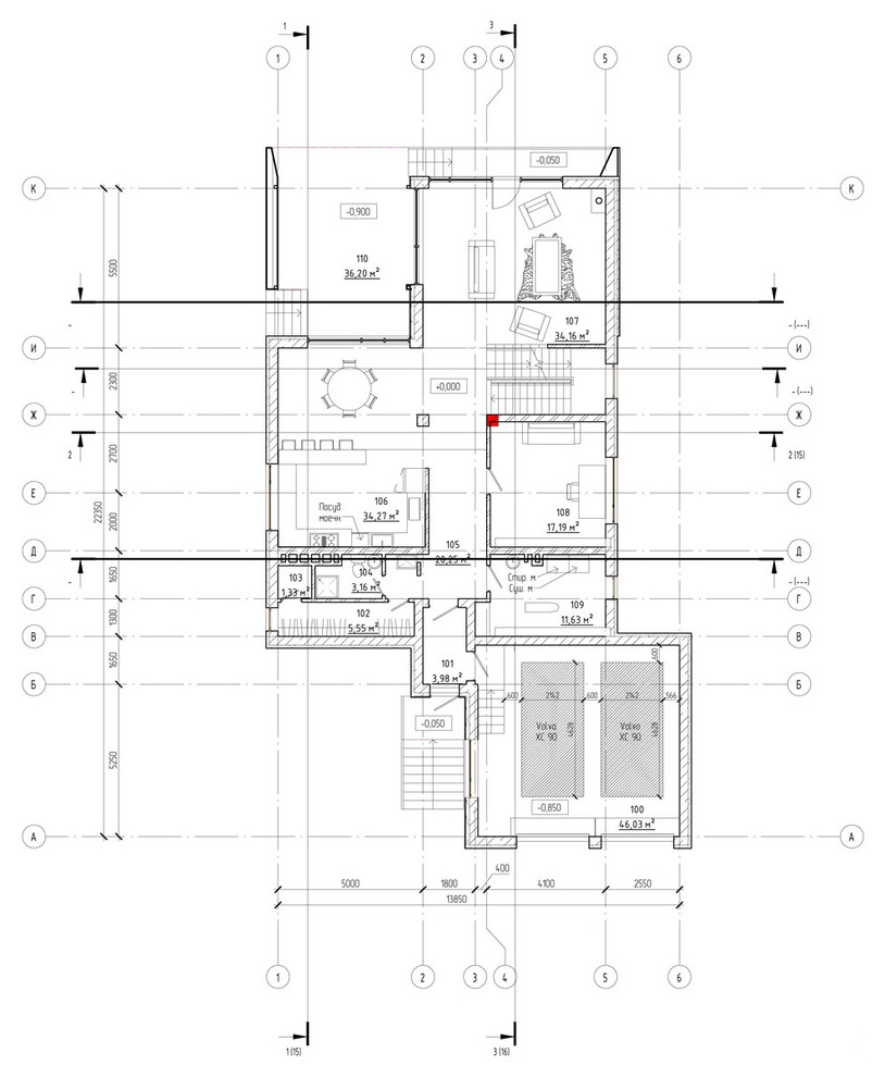
Проект дома площадью 400 кв.м.
Проект современного загородного дома со вторым светом в гостиной, подвалом и мансардным этажом. Материал стен - железобетонный каркас с заполнением газобетонными блоками, с утеплением базальтовым утеплителем, штукатурной отделкой. . Viber, Whatsapp + 7 909 289 22 70
Год реализации: 2013
Стоимость проектирования: 135 000 ₽
г. Нижний Новгород
6 фотографий





