Проект дома для молодой семьи из Москвы
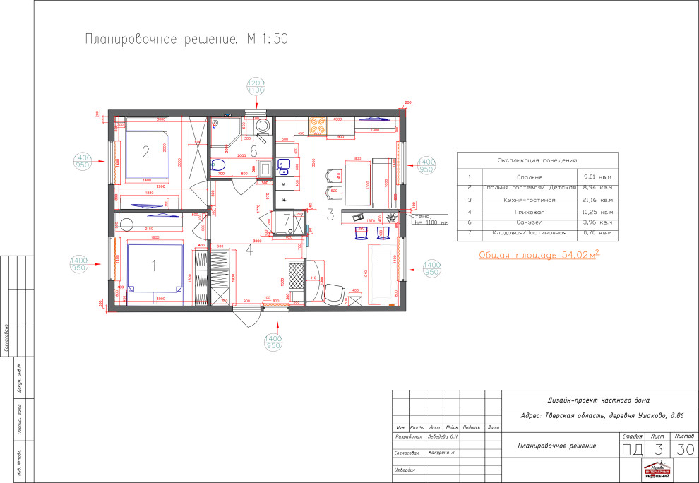
Дизайн-проект одноэтажного дома выполнен для молодой и современной пары. Проект предусматривал изменение геометрии изначального пространства и функциональное объединение зон кухни и гостиной. Проект интерьера выполнен в светлых оттенках с выразительными цветовыми акцентами с учётом образа жизни и личностных особенностей заказчиков. В настоящее время дом находится на этапе строительства.
Год реализации: 2020
Стоимость проектирования: 34 999 ₽
14 фотографий















