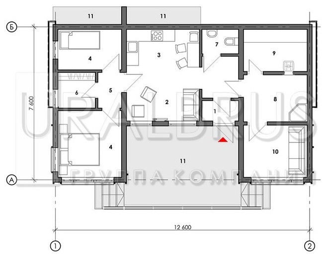
Профиль пользователяПроект дома Д041Год реализации: 20194 фотографииПоделитьсяСохранитьПроект дома Д041ПоделитьсяСохранитьПроект дома Д041ПоделитьсяСохранитьПроект дома Д041ПоделитьсяСохранитьПроект дома Д 041ПоделитьсяСохранить