Проект дома Бау 40
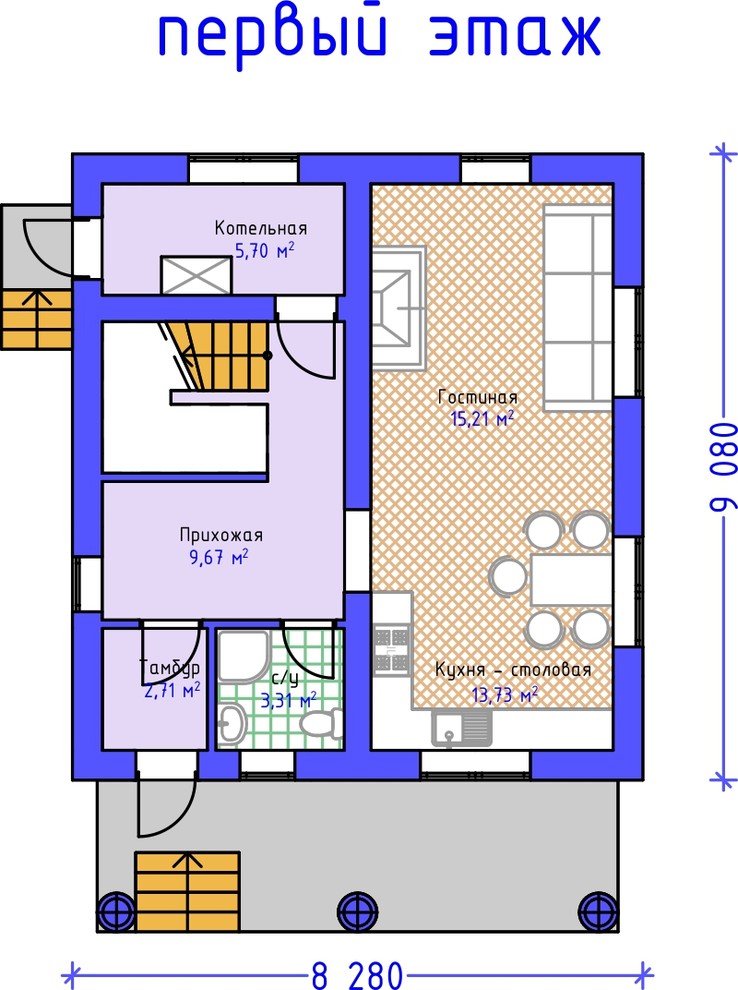
Адрес: пос. Волочаевское . . Площадь: 100.36 м2 . Стоимость проекта: 7 500 руб. . . Стоимость строительства: 1 506 000 руб. . Комплект чертежей для строительства дома содержит: . Архитектурные решения (АР)
Год реализации: 2017
г. Калининград
6 фотографий







