Проект дома 194 в Средиземноморском стиле
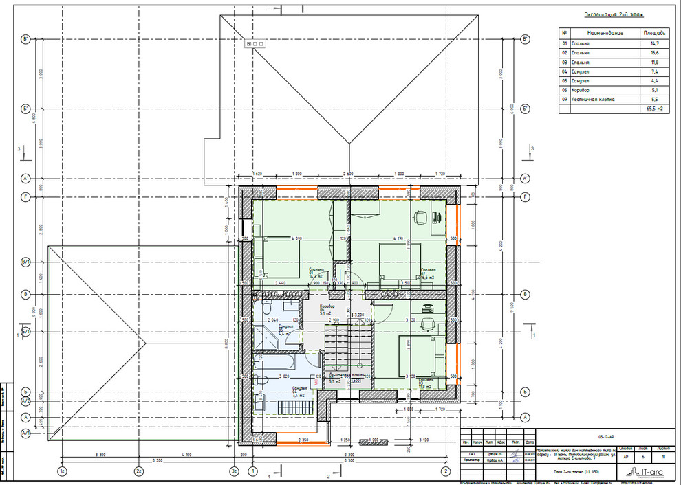
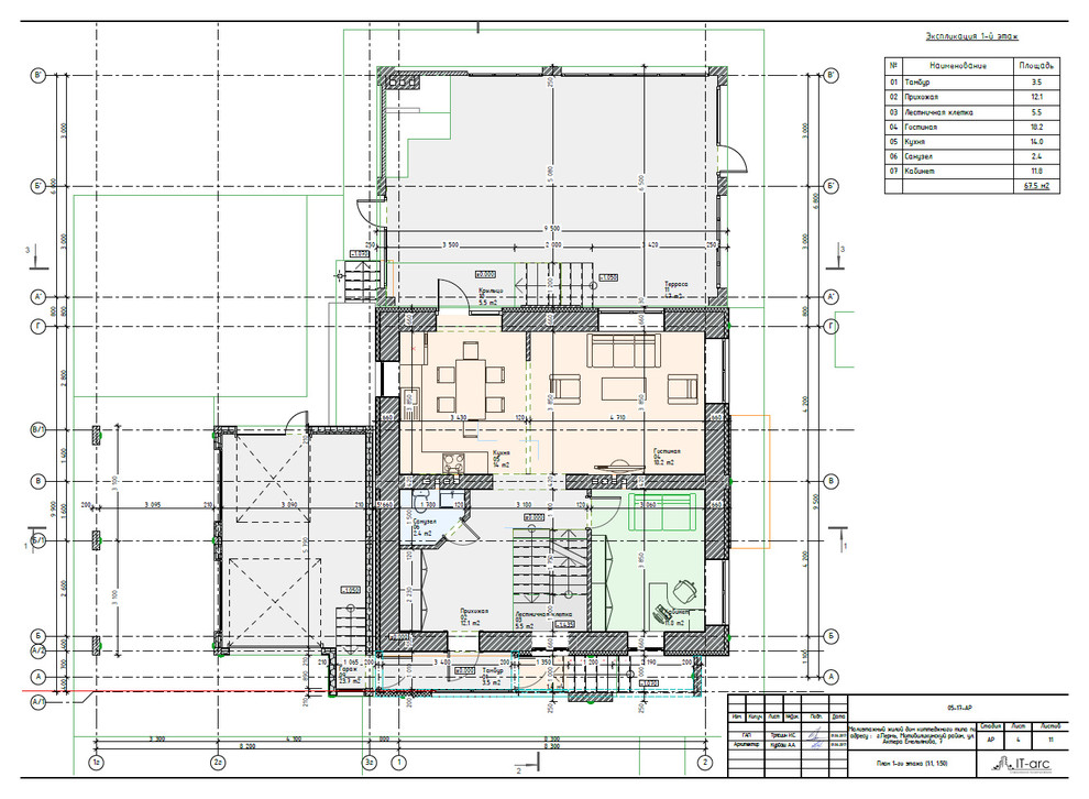
Видео: https://youtu.be/RTyPCK-1HSk . . Проект 2-этажного жилого дома с гаражом, подвалом и верандой-барбекю, S=194 кв.м, 2 этажа (Гараж S=23,7 кв.м+ Веранда S=52,5 кв.м)
Год реализации: 2017
Стоимость проектирования: 135 000 ₽
г. Пермь
36 фотографий




































