logo
Войти
Профиль пользователя

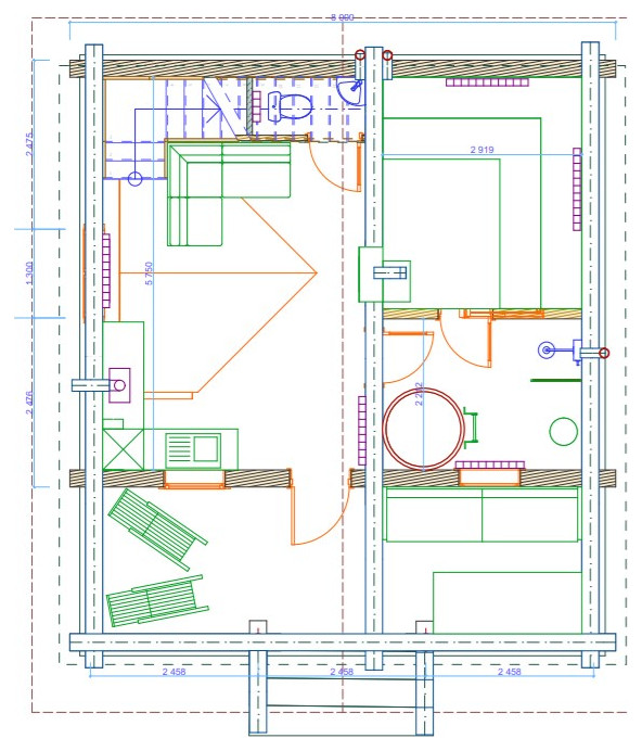
Проект бани из оцилиндрованного бруса д.Рай

Год реализации: 2021
photo

2 фотографии

Проект бани из оцилиндрованного бруса д.Рай
Проект бани из оцилиндрованного бруса д.Рай
Проект бани из оцилиндрованного бруса д.Рай
Проект бани из оцилиндрованного бруса д.Рай
Фоновое изображение профиля Антарес Архитектура- дизайн
Фото профиля Антарес Архитектура- дизайн

Антарес Архитектура- дизайнАнтарес Архитектура- дизайн

0

0 отзывов

Архитекторы

Контакты

г. Смоленск, Ленина

Все проекты

Octagon

Придорожное кафе

precipice

Reflection

Silver keys

Смотреть все
Флатика
О насМы в прессеFAQКонтактыМатериалы

«Флатика» в соцсетях:

ПинтерестМаксВкДзенTelegramTelegram Pro
Pro
Instagram

Продукт компании Meta, признанной экстремистской организацией, деятельность которой запрещена в РФ

Пользовательское соглашениеПолитика в отношении обработки персональных данныхКарта сайта

© 2026 Flatica

ФотоЭкспертыСтатьи