logo
Войти
Профиль пользователя

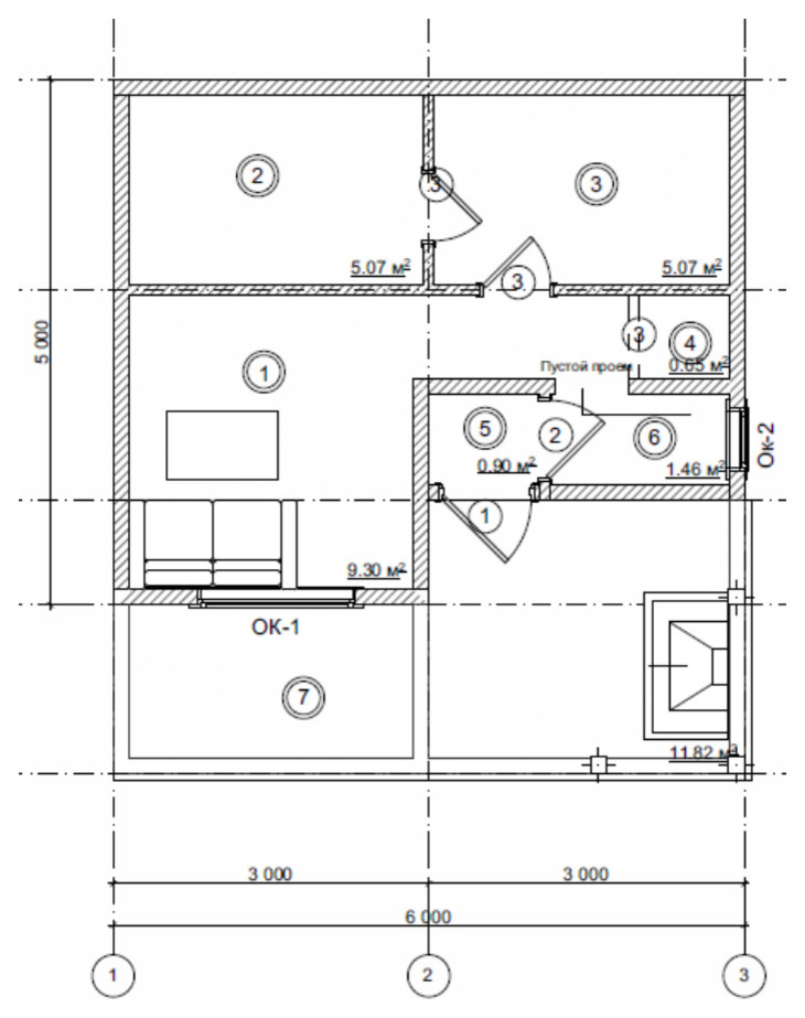
Проект бани из бруса 35 м2 - 1 этаж

Год реализации: 2018
photo

3 фотографии

Проект бани из бруса 35 м2 - 1 этаж
Проект бани из бруса 35 м2 - 1 этаж
Проект бани из бруса 35 м2 - 1 этаж
Проект бани из бруса 35 м2 - 1 этаж
Проект бани из бруса 35 м2 - 1 этаж
Проект бани из бруса 35 м2 - 1 этаж
Фоновое изображение профиля PIONEER
Фото профиля PIONEER

PIONEERPIONEER

0

0 отзывов

Архитекторы

Контакты

г. Санкт-Петербург

Все проекты

Проект дома из газобетона № 496 — 176 м2

Проект дома из бруса № 2750 — 183 м2

Проект дома из бруса № 1392 — 147 м2

Проект дома из бруса № 980 — 220 м2

Проект дома из газобетона № 785 — 152 м2

Проект дома из газобетона № 2482 — 124 м2 (10 х 8)

Смотреть все
Флатика
О насМы в прессеFAQКонтактыМатериалыКарта сайта

«Флатика» в соцсетях:

ПинтерестМаксВкДзенTelegramTelegram Pro
Pro
Instagram

Продукт компании Meta, признанной экстремистской организацией, деятельность которой запрещена в РФ

Пользовательское соглашениеПолитика в отношении обработки персональных данных

© 2026 Flatica

ФотоЭкспертыСтатьи