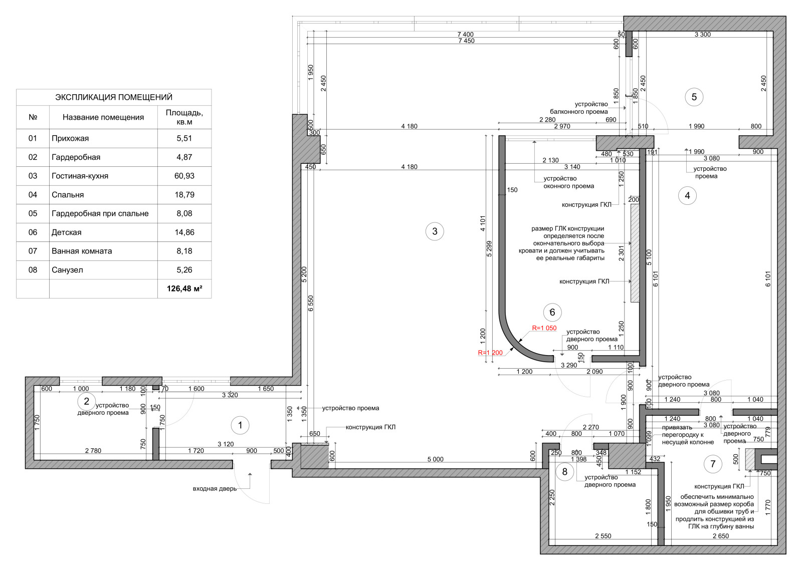
Проект 120кв м, для современной пары с ребенком.
. Проект для пары с ребенком, которые очень любят гостей. Цветовая гамма подобрана для комфортного отдыха семьи. Стилевое решение подчеркивает характер и статус владельцев.
Год реализации: 2021
Стоимость проектирования: 275 000 ₽
г. Москва
9 фотографий









