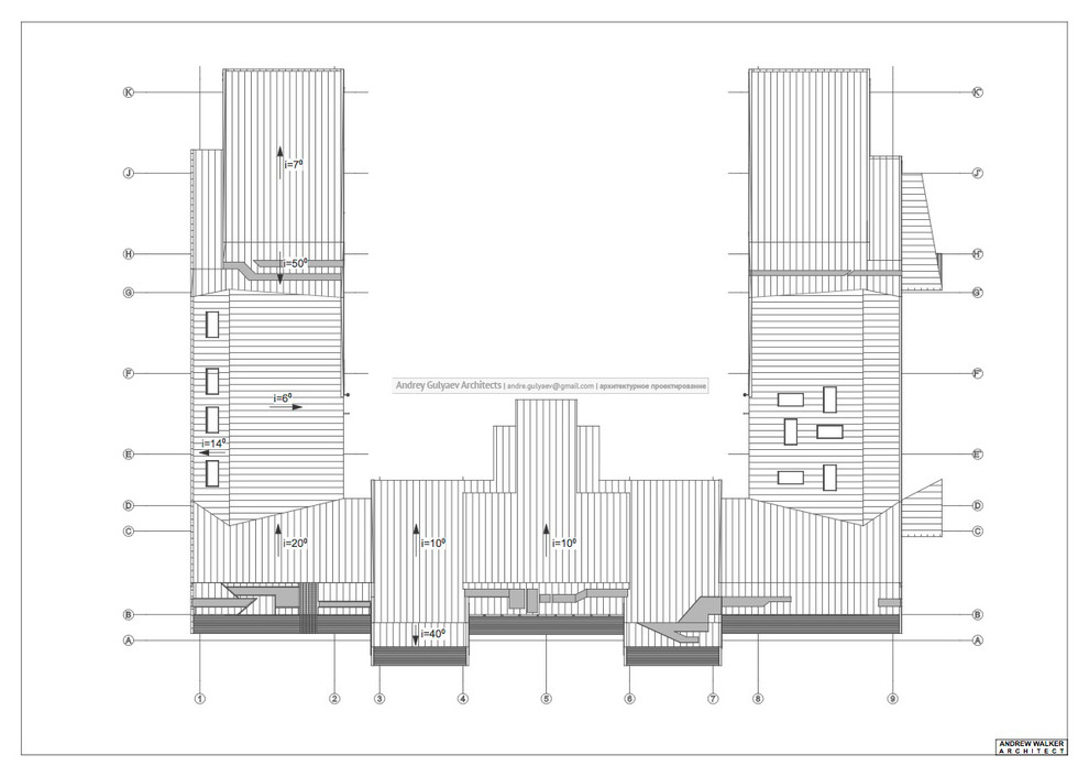
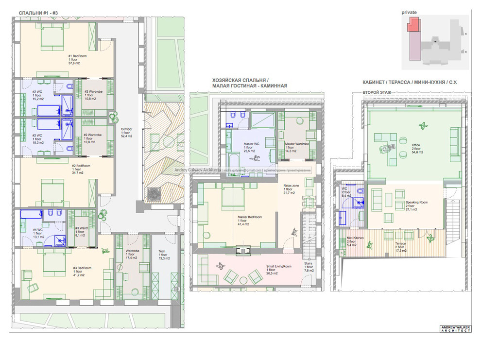
Профиль пользователяPrivate residence project / PahraГод реализации: 201522 фотографииПоделиться проектомSectionsСохранитьПоделитьсяSectionsСохранитьПоделитьсяSectionsСохранитьПоделитьсяSectionsСохранитьПоделитьсяCover pageСохранитьПоделитьсяModel development processСохранитьПоделитьсяScheme of constructionСохранитьПоделитьсяScheme of constructionСохранитьПоделитьсяScheme of constructionСохранитьПоделитьсяRoofСохранитьПоделитьсяRoofСохранитьПоделитьсяFirst floor plan, Floor-spaceСохранитьПоделитьсяFirst floor planСохранитьПоделитьсяFirst floor planСохранитьПоделитьсяFirst floor planСохранитьПоделитьсяFirst floor planСохранитьПоделитьсяConstruction planСохранитьПоделитьсяMaster planСохранитьПоделиться3dСохранитьПоделиться3dСохранитьПоделиться3dСохранитьПоделиться3dСохранитьПоделиться