Природная красота
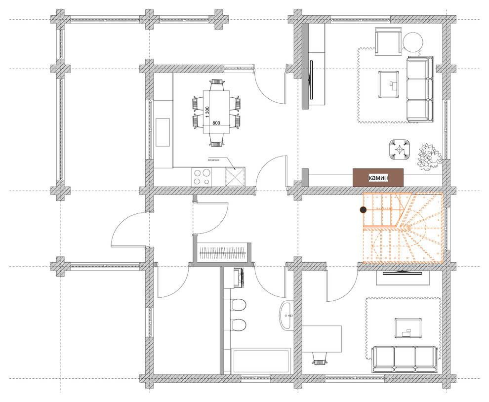
Дом из оцилиндрованного бруса, построенный в коттеджном поселке "Лесные пруды" Нарофоминского района Московской области. . . Главной целью проекта была реализация представлений владельца о комфортном загородном доме, «родовом гнезде» для небольшой семьи. . . В архитектурном решении интерьеров главенствуют лаконизм и функциональность, размывающие границу между сельским коттеджем и городской квартирой. Пастельность цветов и мягкий свет – вот стилевая доминанта внутреннего пространства дома. . . Первый этаж дома сделан в спокойной цветовой гамме – мягких тонах натурального дерева с использованием декоративных природных элементов. Объединенная гостиная и кухня, кабинет и ванная комната – вот все помещения первого этажа. . . Индивидуальный характер носит второй этаж, на котором расположились детские и спальни для семьи. Простота и ясность, теплота и комфортабельность — вот синонимы, присущие интерьерному решению этого дома.
14 фотографий















