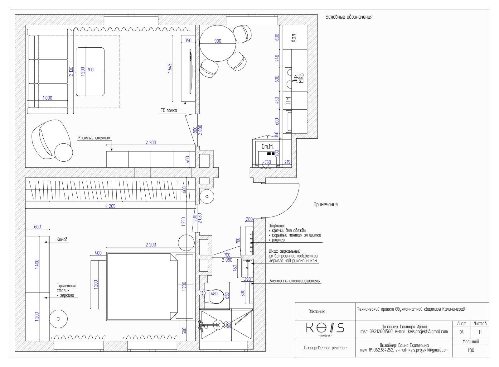
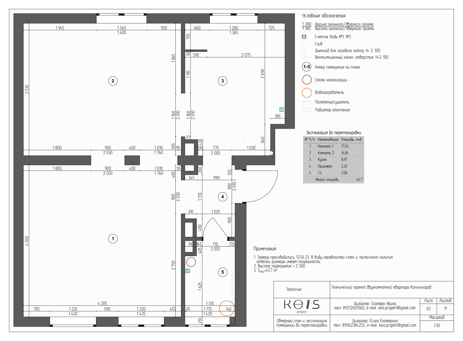
Пример - Проект технический
Кейс - проект технический подходит для первого этапа для ремонта и строительства, для тех кто имеет желание самостоятельно разработать дизайн помещений. Выполнения работ в короткие сроки. Дополнительно можно получить рекомендации по поставщикам. Возможна, дальнейшая проработка проекта
Год реализации: 2023
13 фотографий













