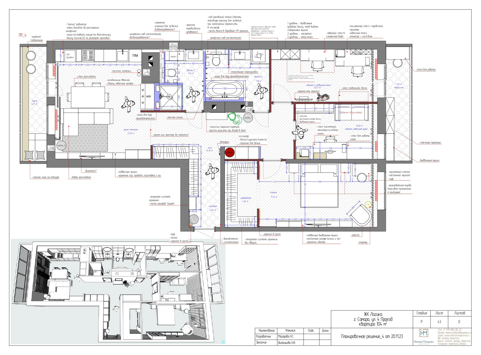
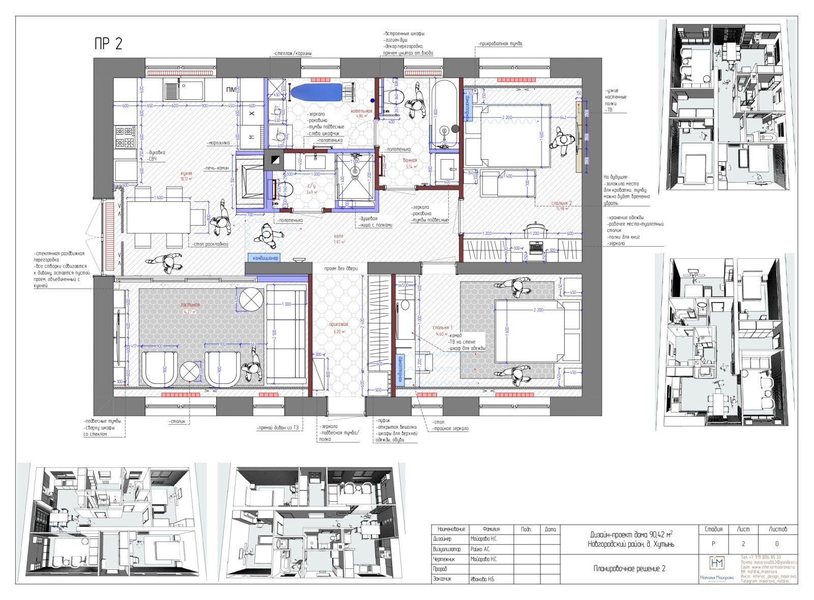
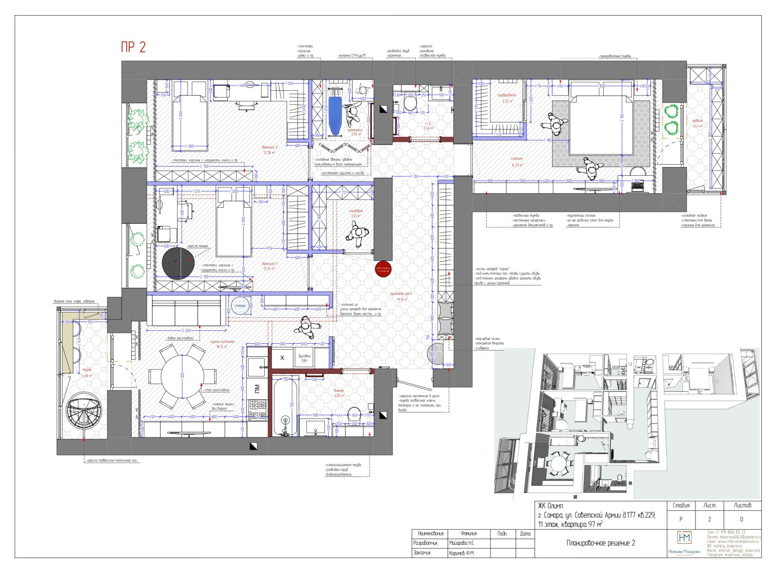
Профиль пользователяПланировочные решения (примеры разных объектов)Год реализации: 2024Стоимость проектирования: 34 999 ₽5 фотографийПоделитьсяСохранитьПланировочные решения (примеры разных объектов)ПоделитьсяСохранитьПланировочные решения (примеры разных объектов)ПоделитьсяСохранитьПланировочные решения (примеры разных объектов)ПоделитьсяСохранитьПланировочные решения (примеры разных объектов)ПоделитьсяСохранитьПланировочные решения (примеры разных объектов)ПоделитьсяСохранить