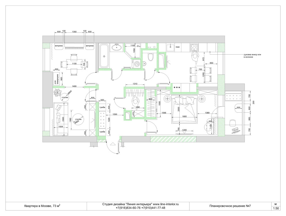
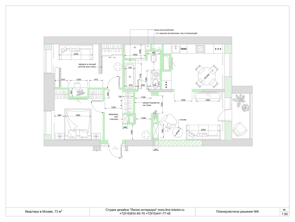
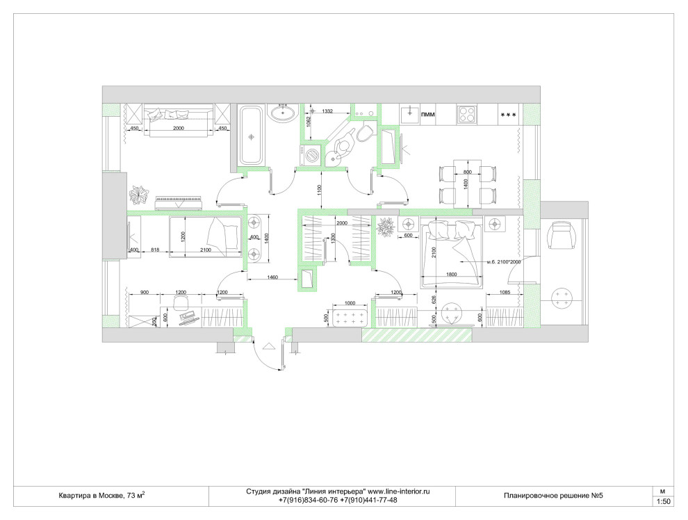
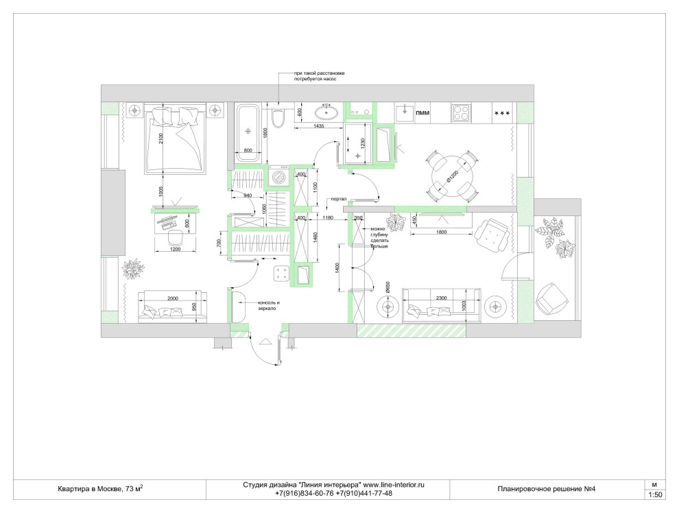
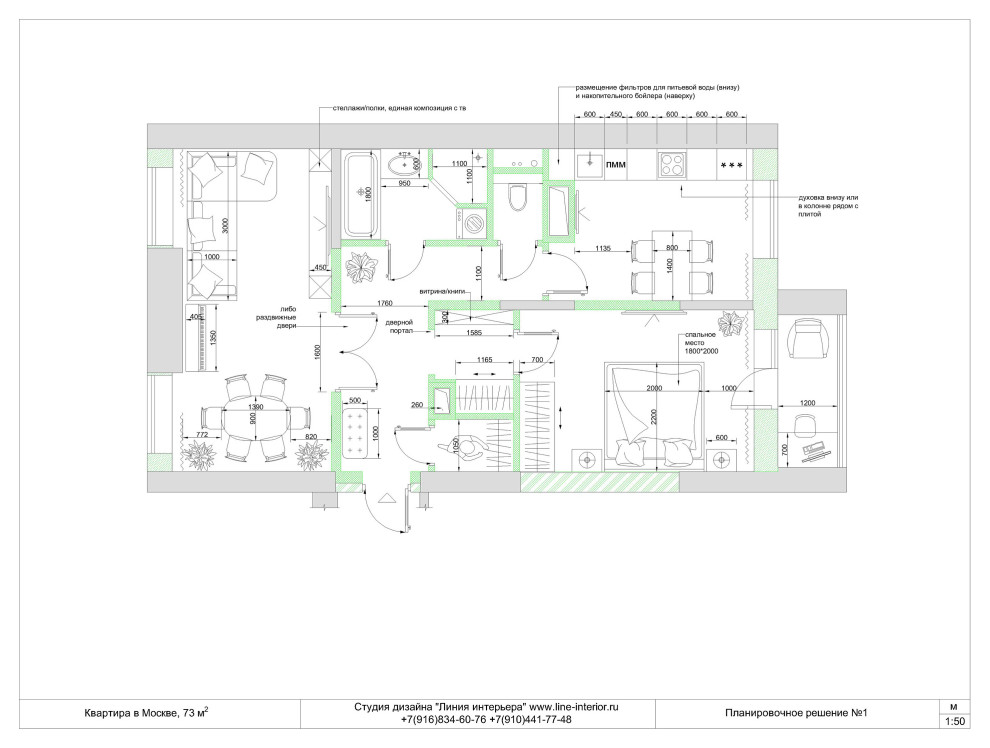
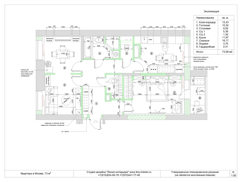
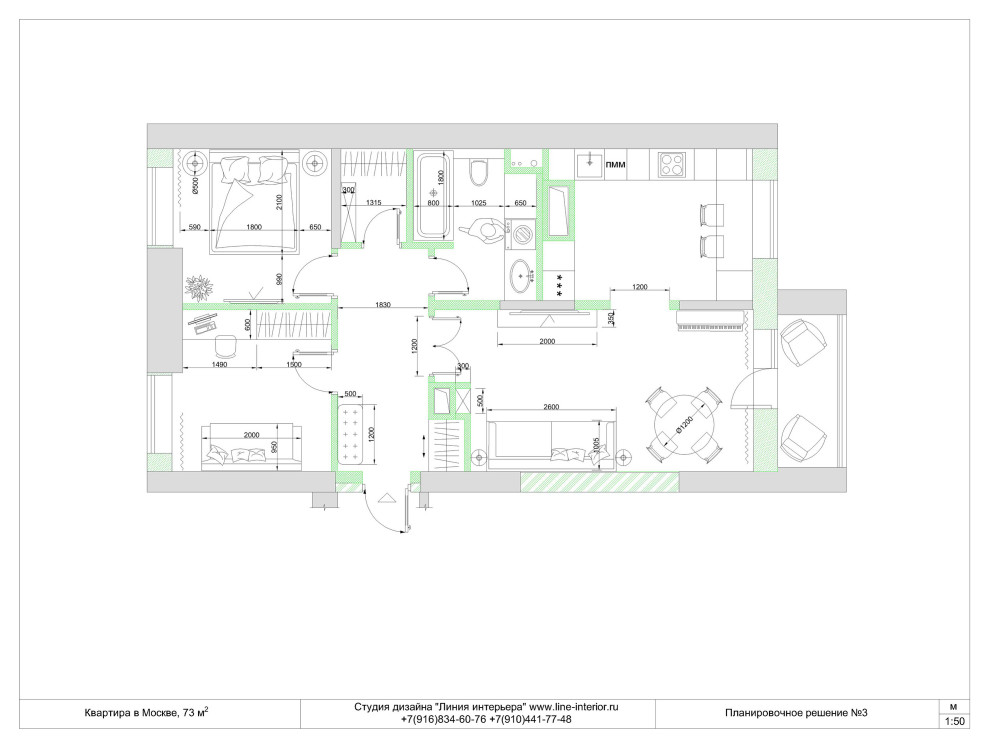
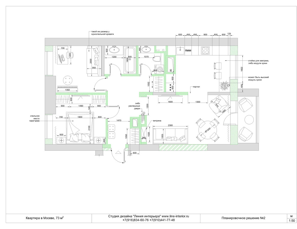
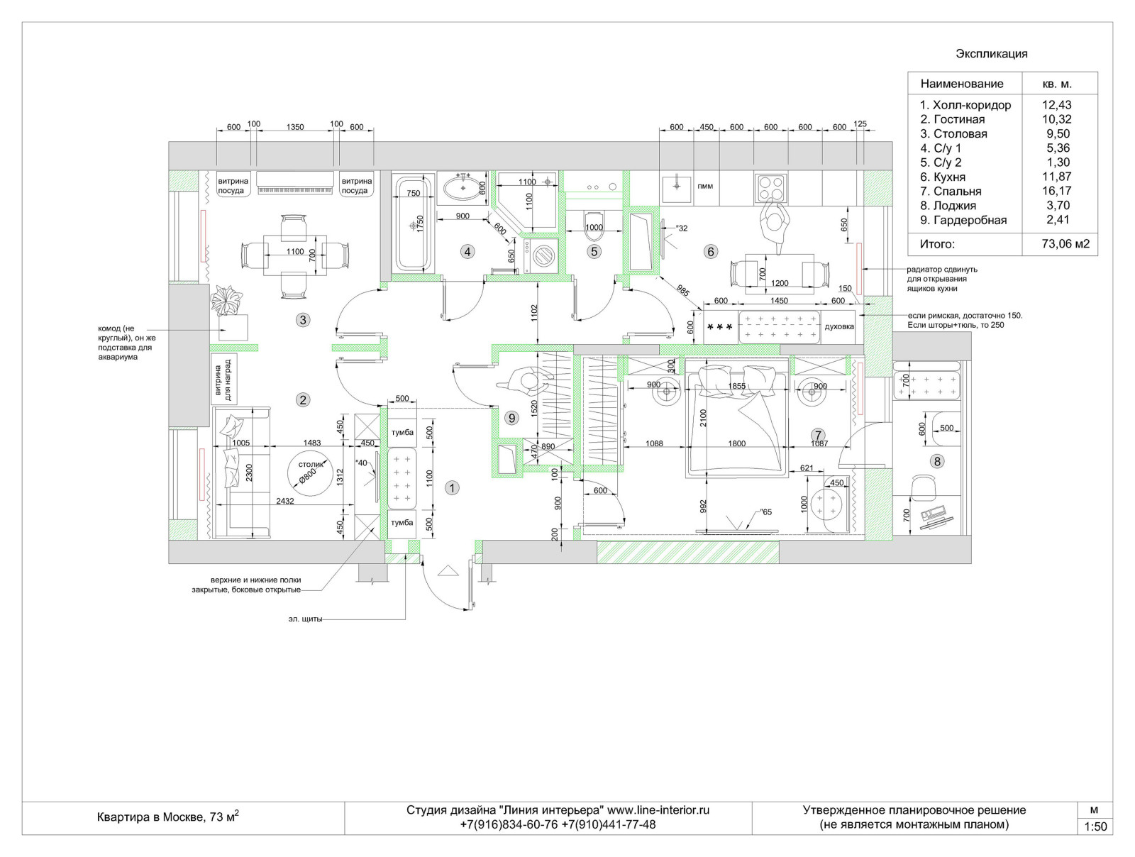
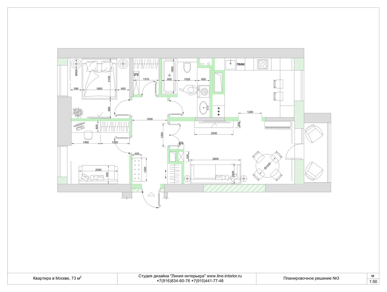
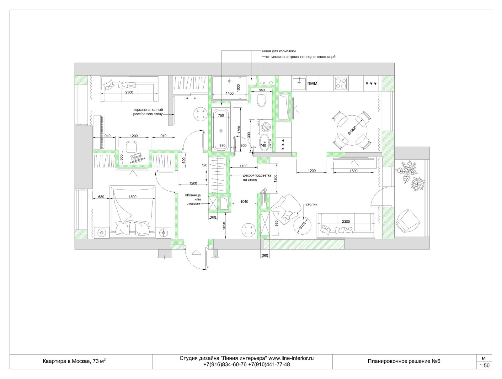
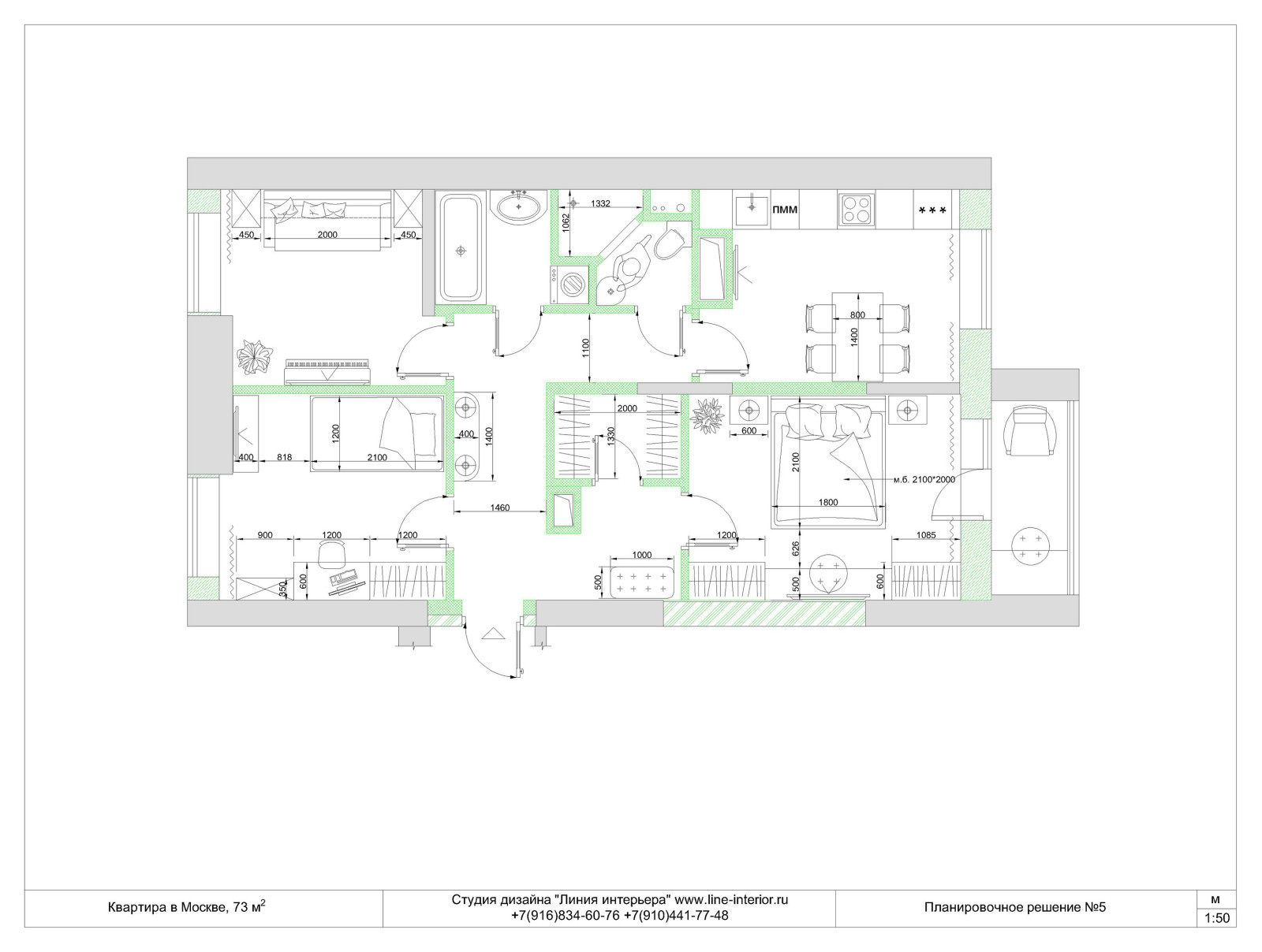
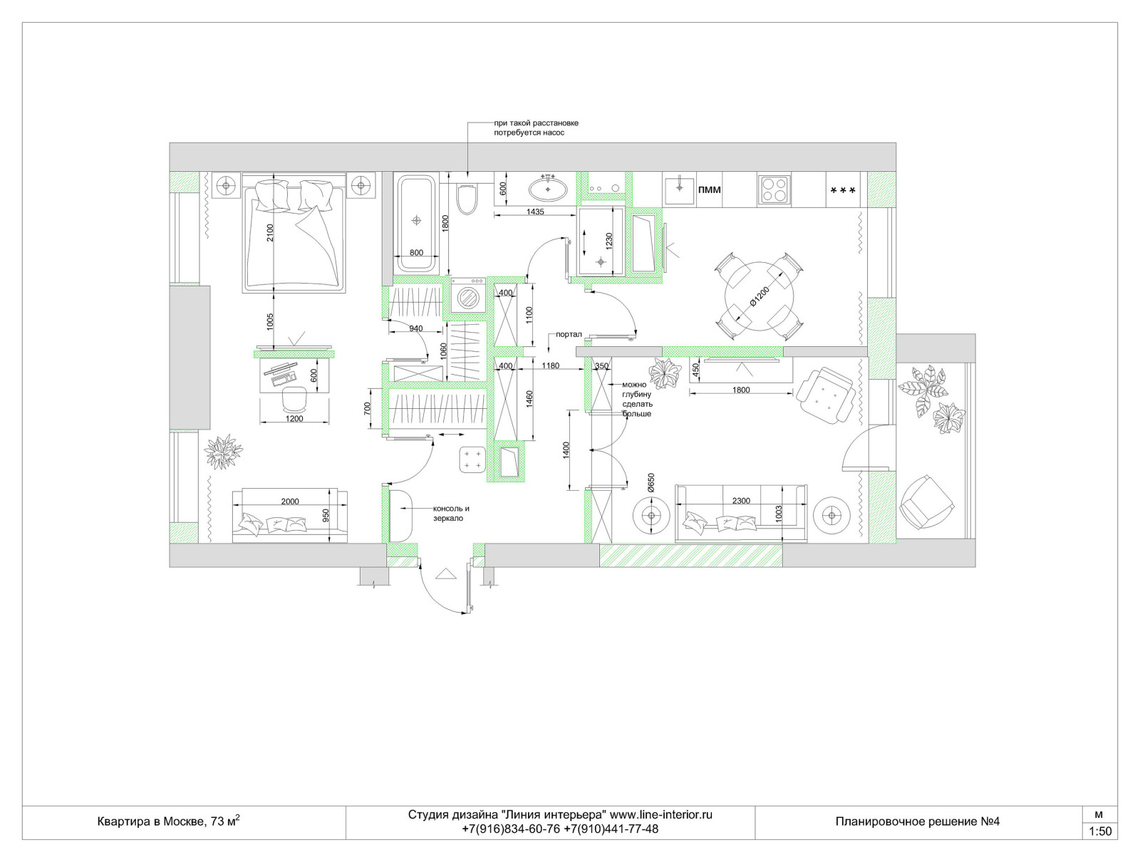
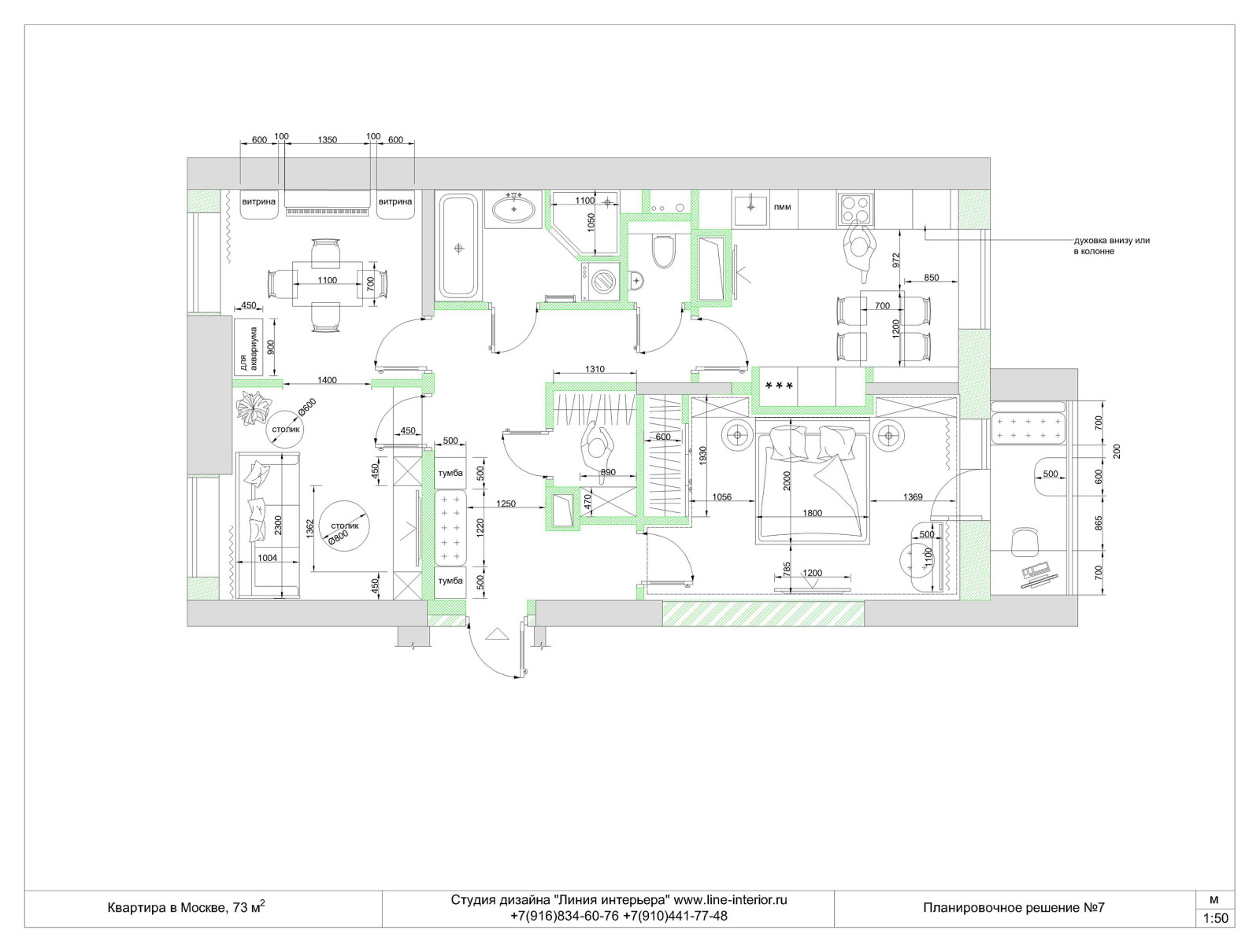
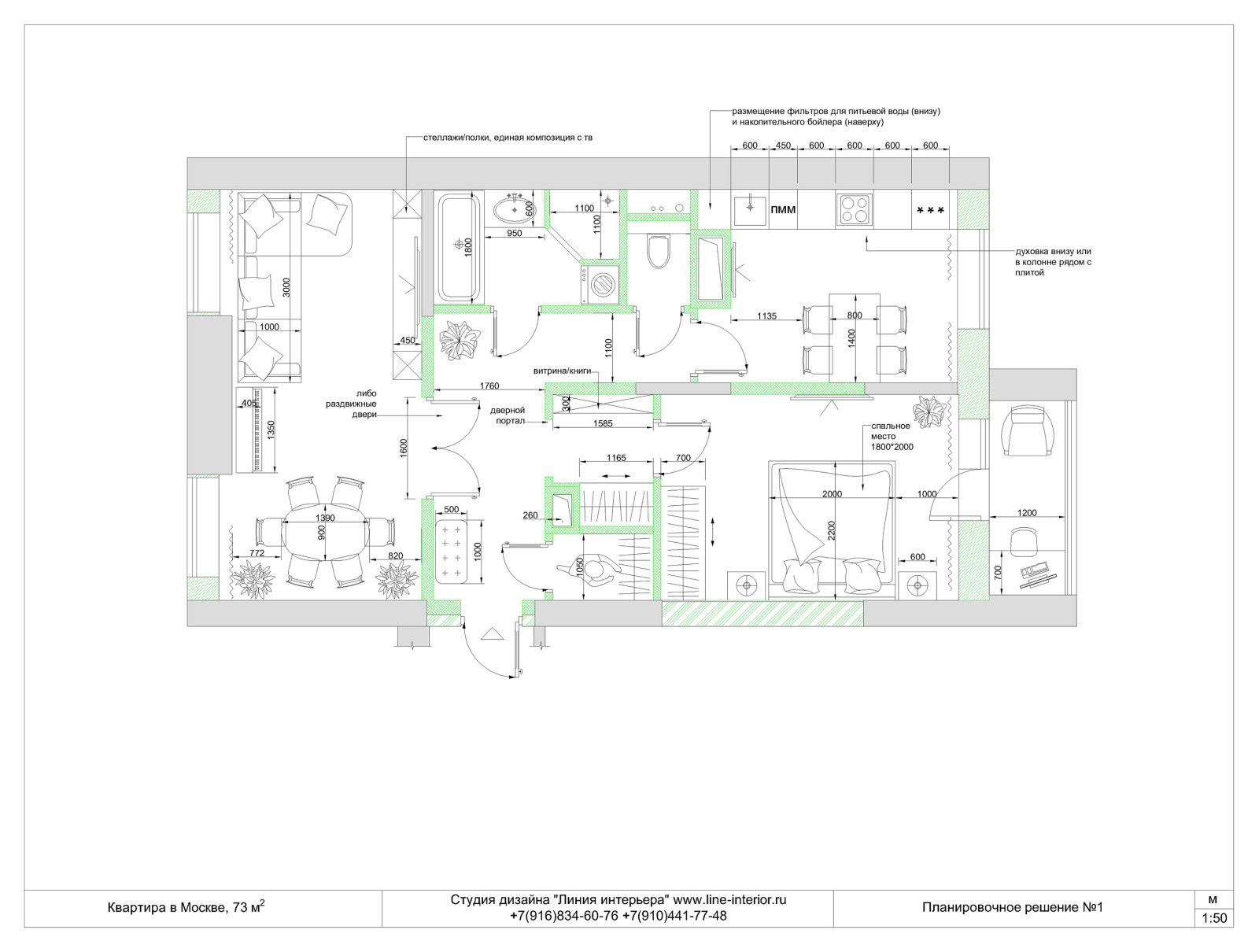
Планировочные решения
Планировка – основа будущего интерьера, важный и обязательный этап проектирования, поэтому необходимо учесть все пожелания к помещению и его технические особенности. . Иногда полный дизайн-проект не укладывается в бюджет, тогда планировка с размерами и расстановкой мебели – это необходимый минимум. По готовой планировке в дальнейшем будет гораздо проще делать ремонт, выбирать мебель. Мы предоставляем несколько планировок помещения, каждая из которых тщательно продумана, а Вы выбираете конечный вариант. . В апреле и мае у нас проводится акция на планировочные решения . https://www.line-interior.ru/actions/01-04-2022-01-06-2022/ . Пишите, звоните, мы будем рады создать Вашу идеальную планировку!
Год реализации: 2022
9 фотографий










