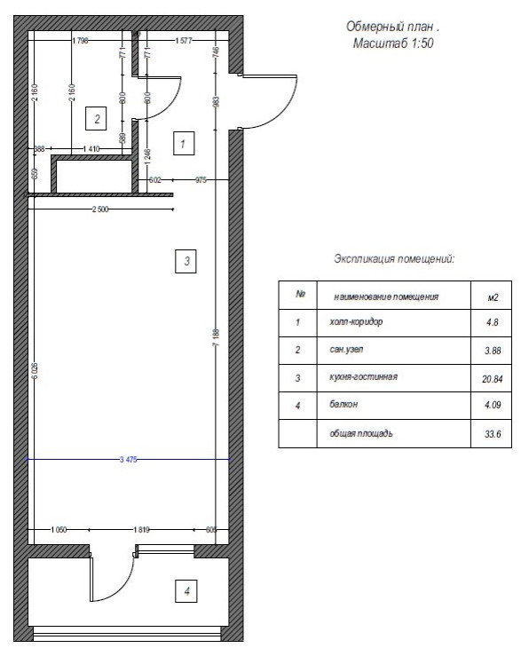
Планировочное решение студии 32кв.м.
Выбор варианта расстановки мебели. . Определения стиля помещения. . Подбор мебели и материалов.
Год реализации: 2020
Стоимость проектирования: 135 000 ₽
г. Новосибирск
5 фотографий
Выбор варианта расстановки мебели. . Определения стиля помещения. . Подбор мебели и материалов.
5 фотографий
