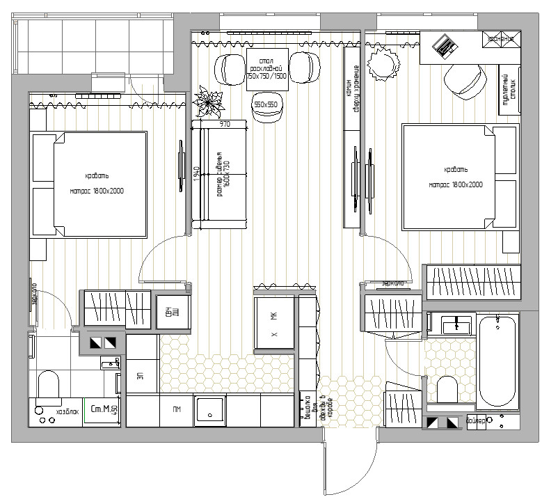
Планировочное решение квартиры 57 кв. м. ЖК Цвета Радуги
Планировка для семейной пары. . Квартира в новостройке Ленинградской области. . Заказчикам хотелось 2 полноценные спальни, в одной из них рабочее место, отдельную гостиную, зону кухни, 2 раздельных санузла, в одном из которых прачечная. Планировка от застройщика не позволяла все это реализовать. . Разработав индивидуальное планировочное решение под запрос моих заказчиков, учитывая их вкусы, предпочтения, привычки, получилось предусмотреть все то, что хотелось семейной паре от своего пространства.
Год реализации: 2022
улица Шувалова
3 фотографии




