logo

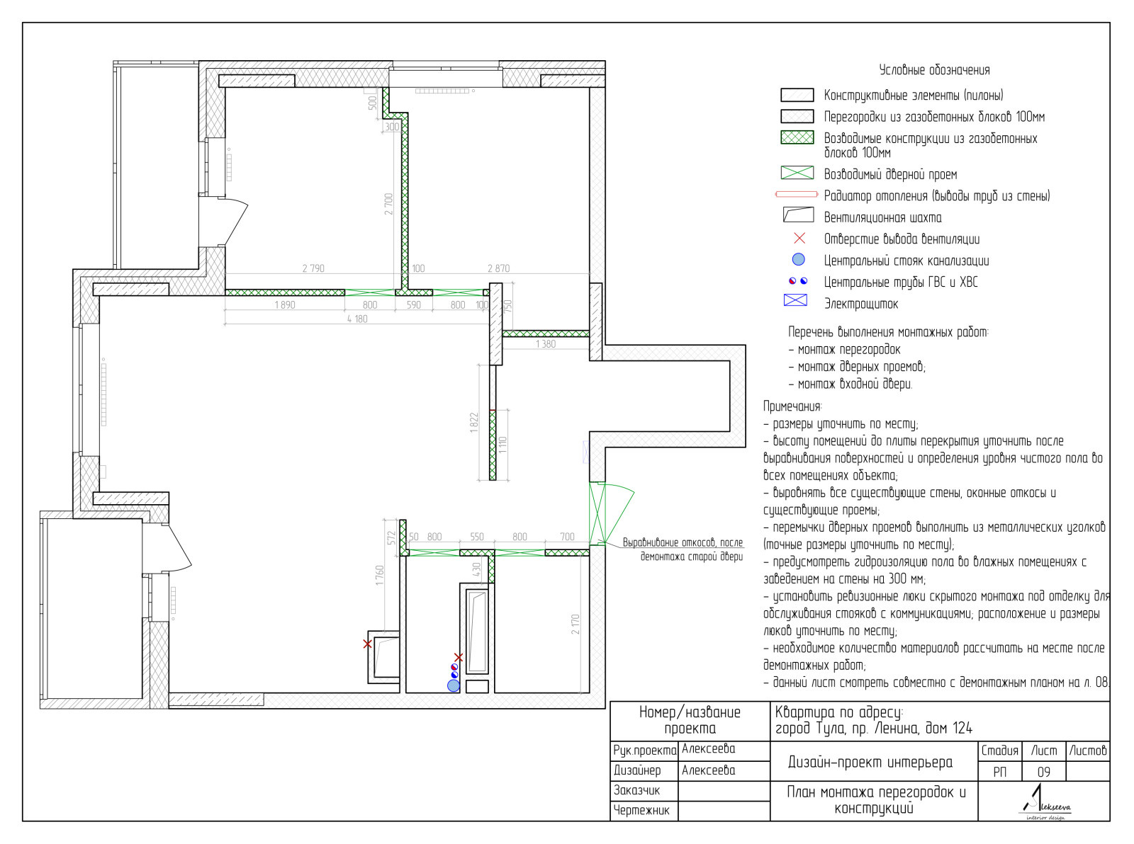
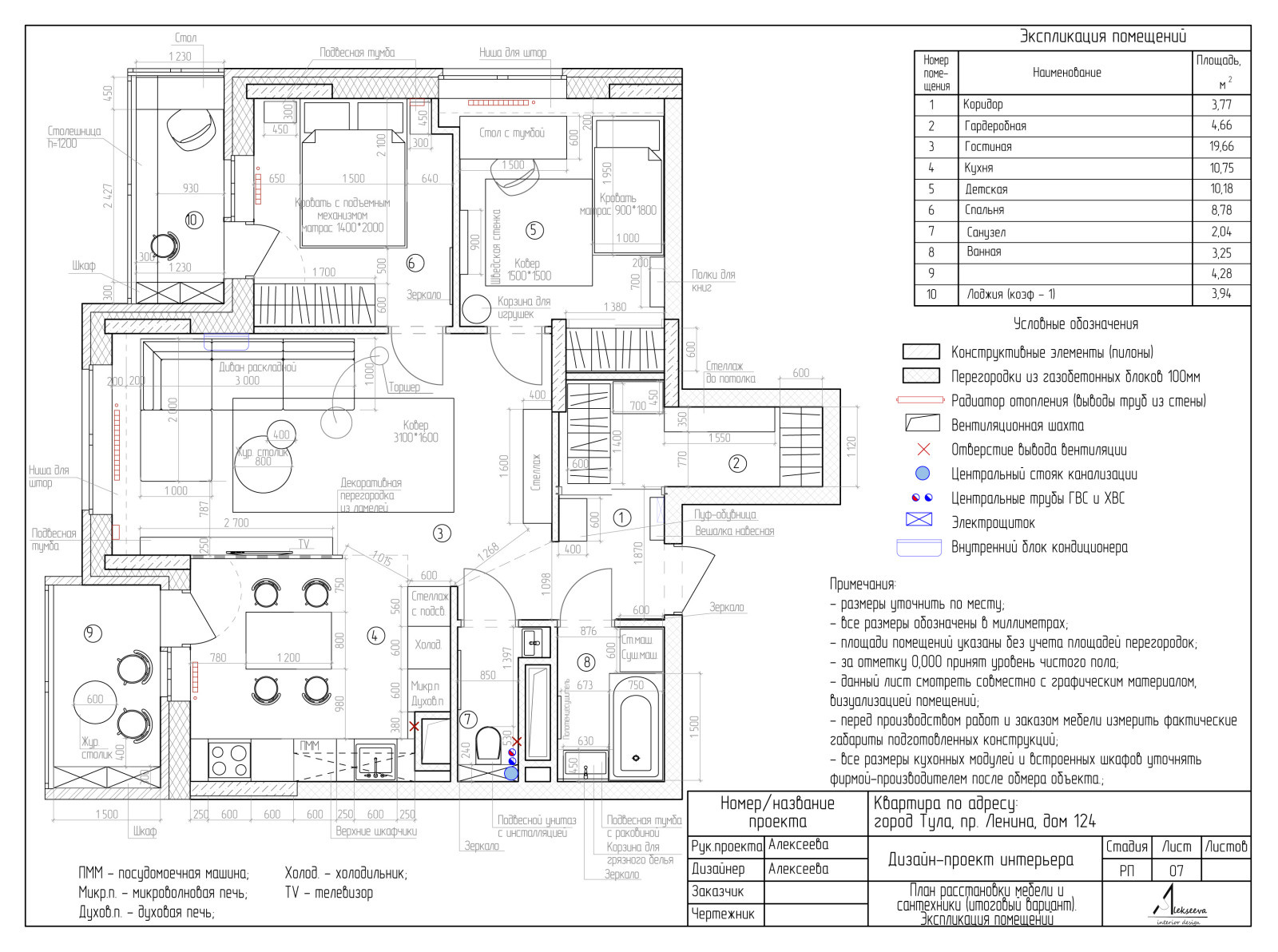
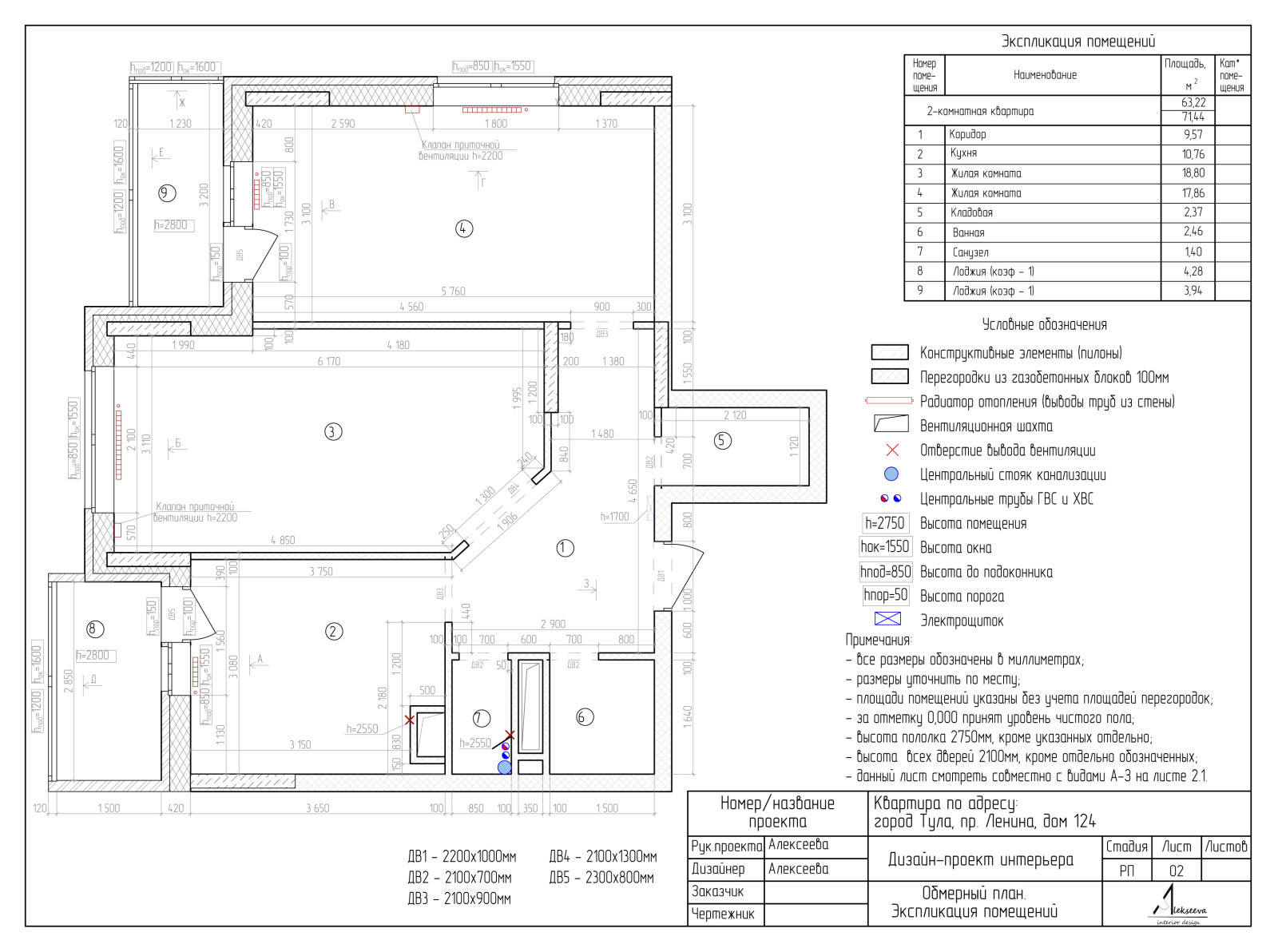
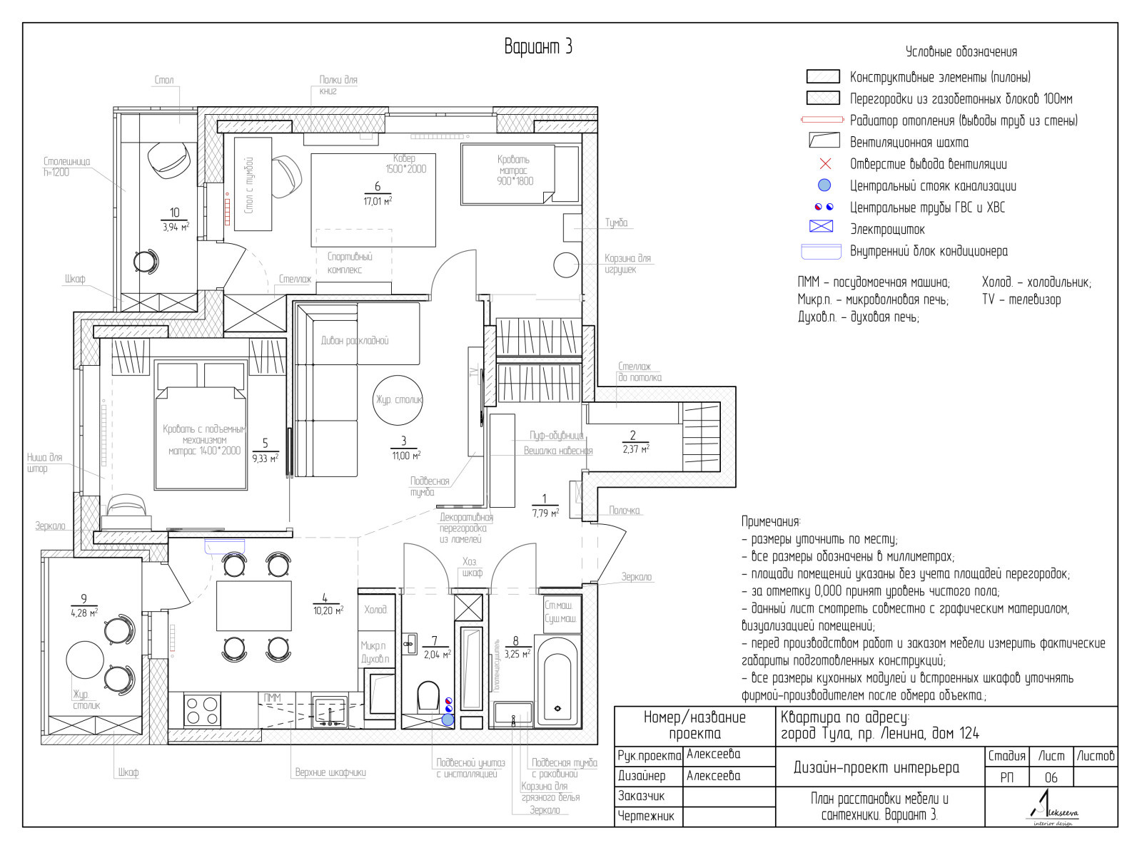
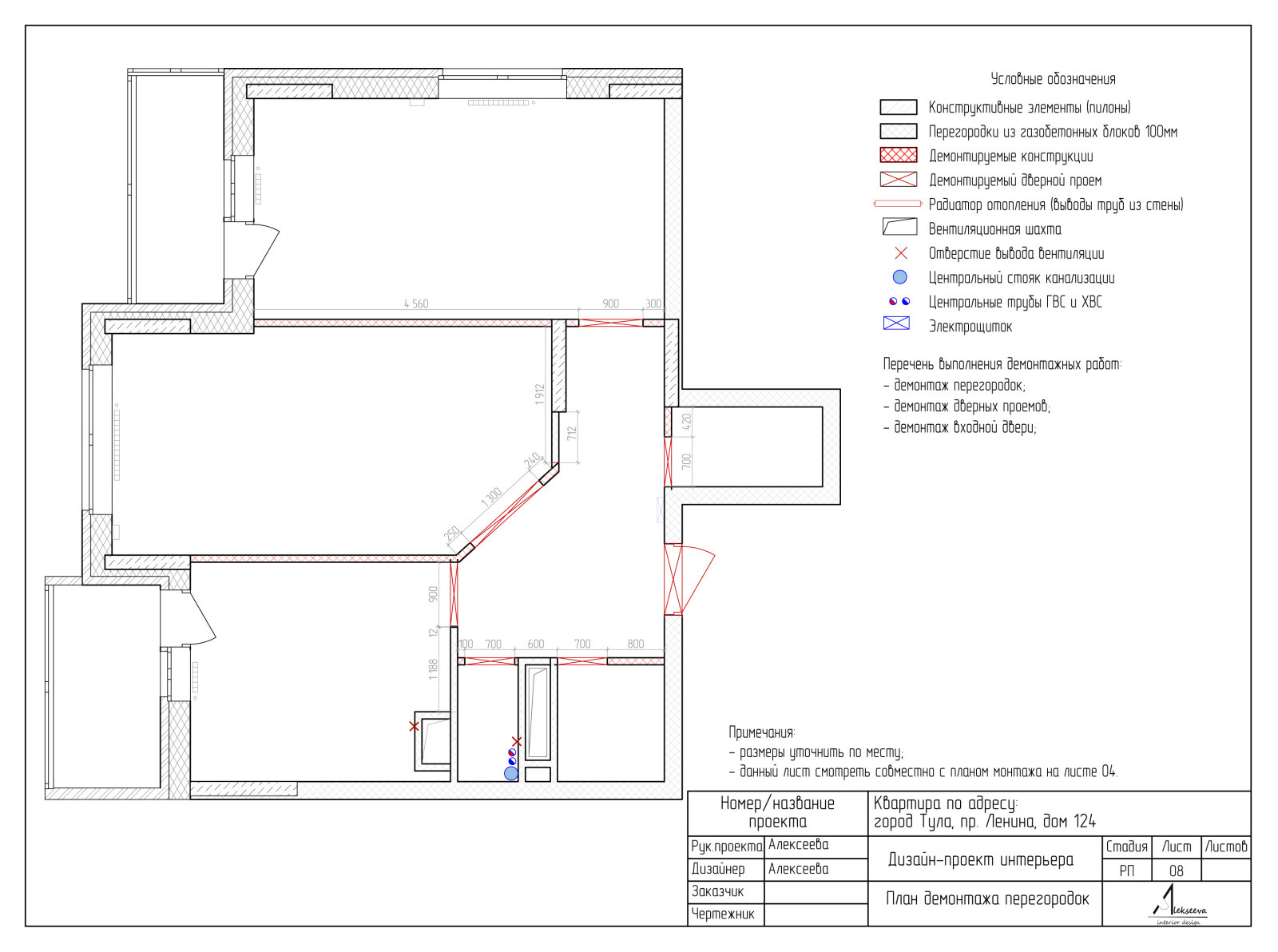
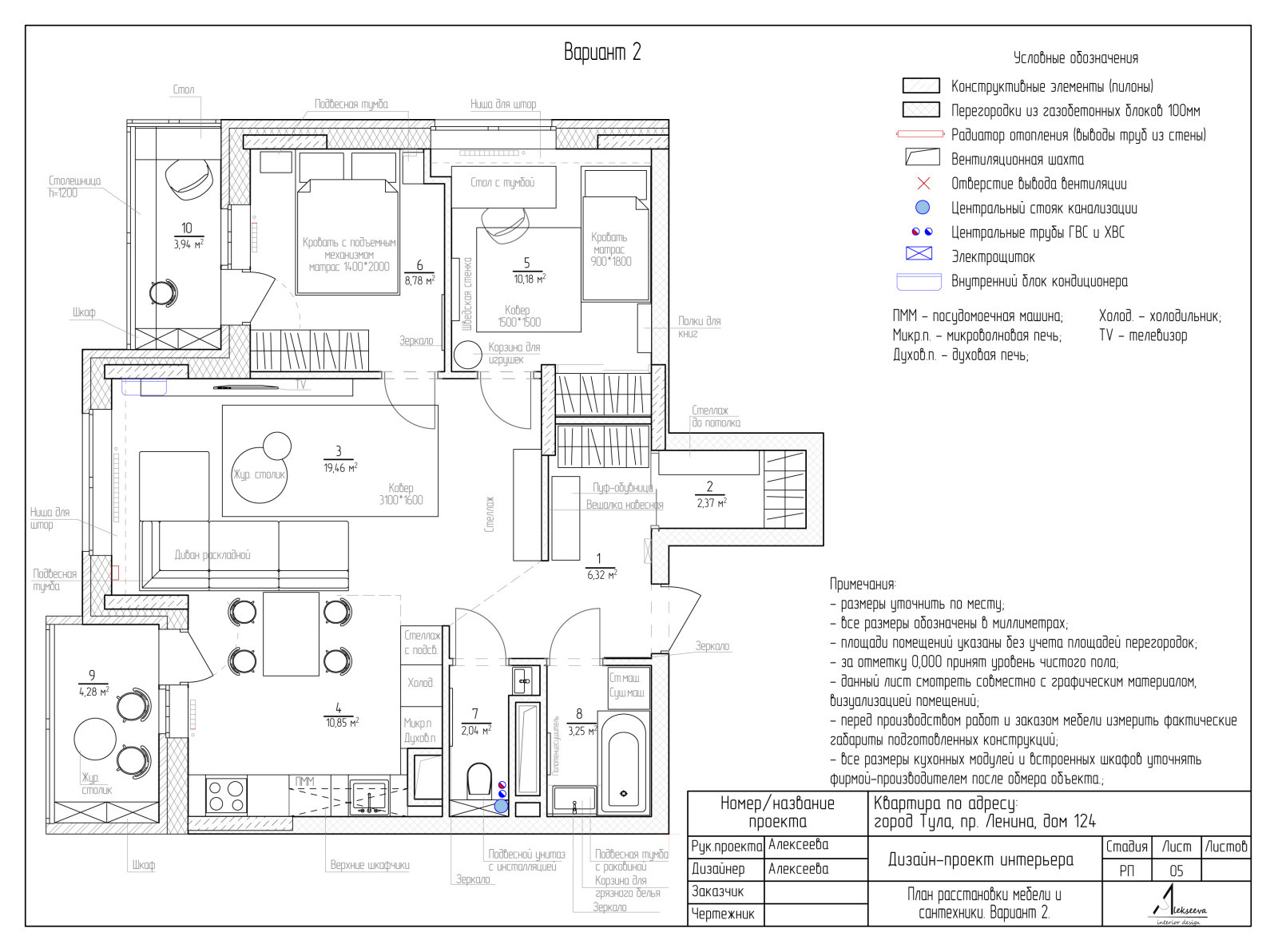
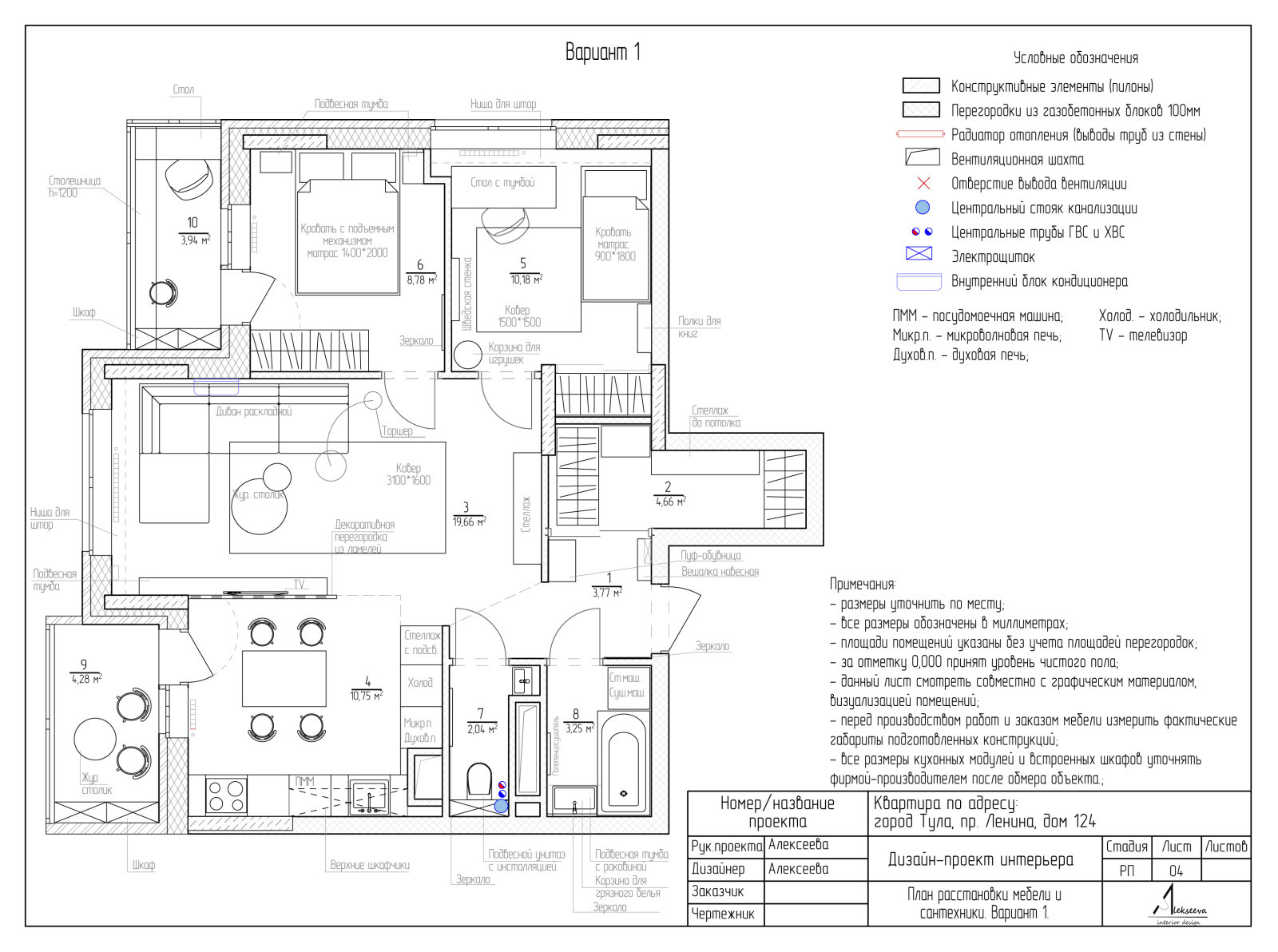
Планировочное решение

Год реализации: 2021
Стоимость проектирования: 34 999
г. Тула
photo

9 фотографий

Планировочное решение
Планировочное решение
Планировочное решение
Планировочное решение
Планировочное решение
Планировочное решение
Планировочное решение
Планировочное решение
Планировочное решение
Планировочное решение
Планировочное решение
Планировочное решение
Планировочное решение
Планировочное решение
Планировочное решение
Планировочное решение
Планировочное решение
Планировочное решение
Фоновое изображение профиля Кристина Алексеева
Фото профиля Кристина Алексеева

Кристина Алексеева

Дизайнеры интерьера