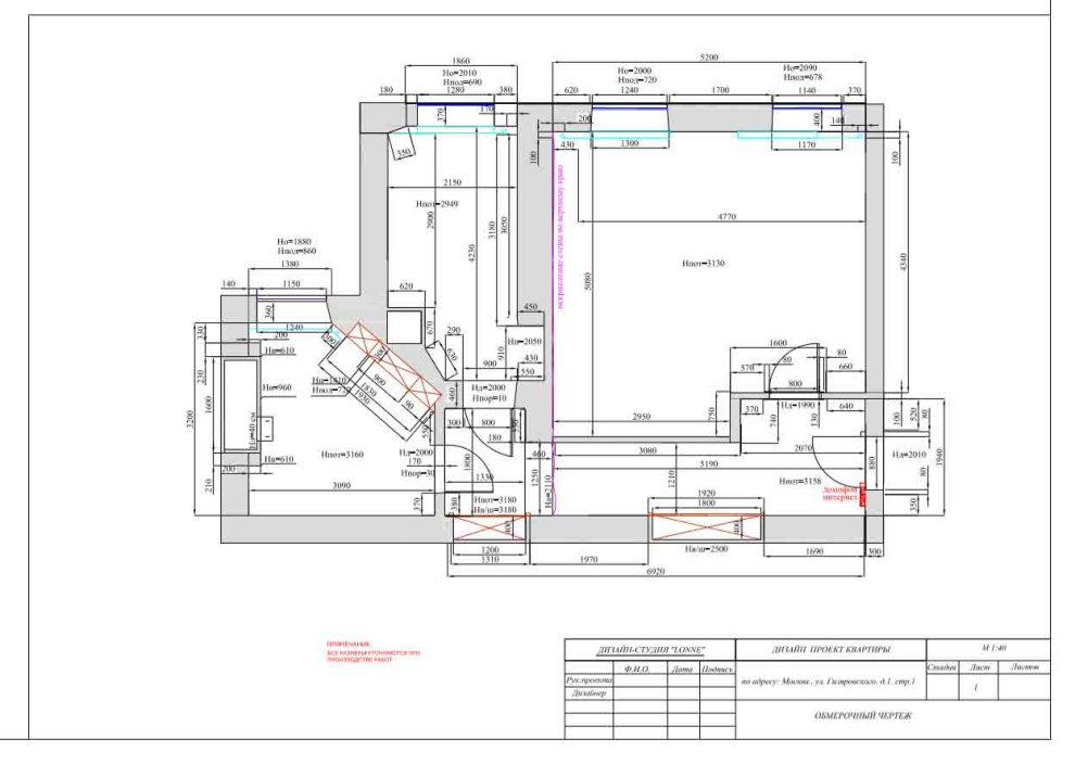
Профиль пользователяПланировочное решение из однокомнатной в двухкомнатнуюГод реализации: 2020г. Москва, улица Гиляровского, Центральный административный округ2 фотографииПоделитьсяСохранитьПланировочное решение 2х комнатной квартиреПоделитьсяСохранитьПланировочное решение 2х комнатной квартиреПоделитьсяСохранить