logo
ФотоЭкспертыСтатьи
Профиль пользователя

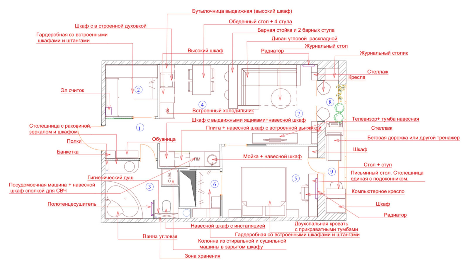
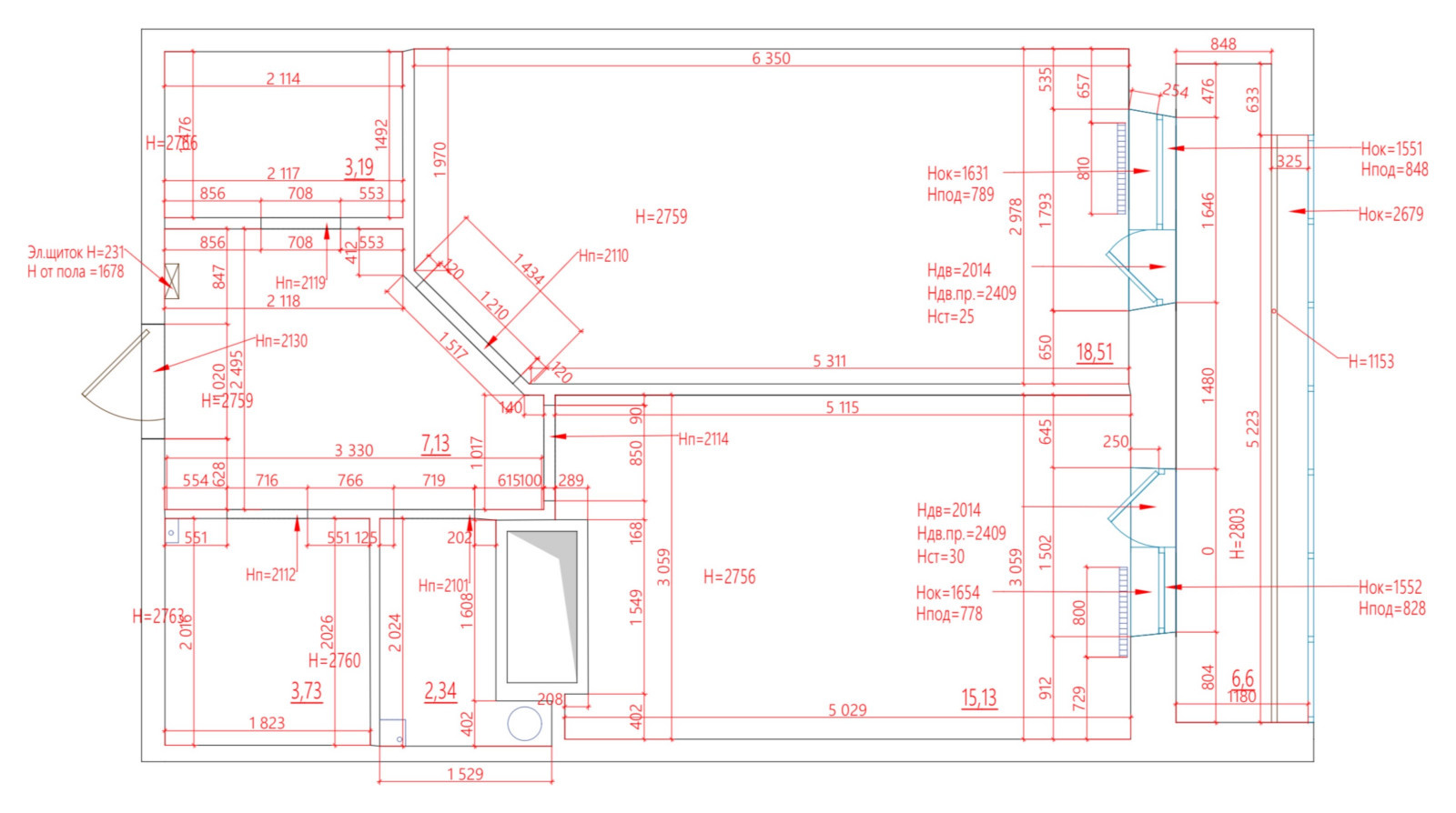
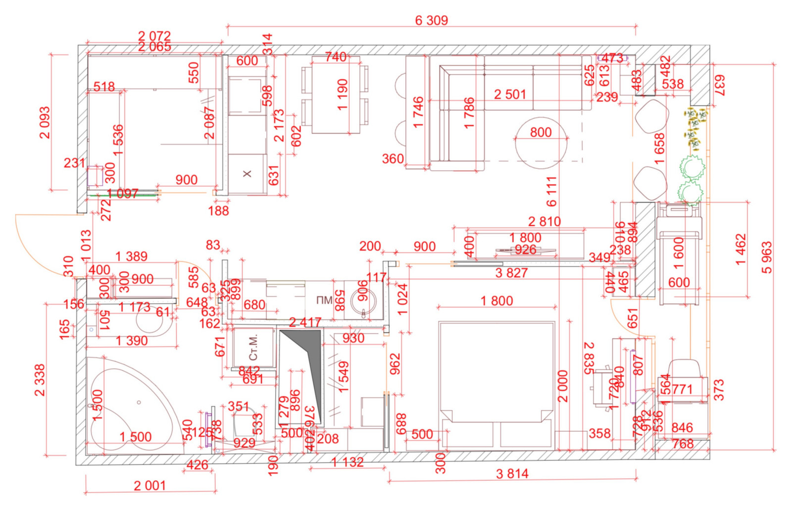
Планировочное решение и Эскизный поект однокомнатной квартиры

Год реализации: 2021
г. Санкт-Петербург
photo

1 фотография

Планировочное  решение и Эскизный поект однокомнатной квартиры
Планировочное решение и Эскизный поект однокомнатной квартиры
Фоновое изображение профиля Ольга Кунцевич
Фото профиля Ольга Кунцевич

Ольга Кунцевич

5

3 отзыва

Дизайнеры интерьера

Контакты

г. Санкт-Петербург, ул. Руднева дом 9 корпус 3
О насМы в прессеFAQКонтакты
ВкДзенTelegramTelegram Pro
Pro
Instagram

Продукт компании Meta, признанной экстремистской организацией, деятельность которой запрещена в РФ

Связаться с поддержкой
Пользовательское соглашениеПолитика в отношении обработки персональных данных